Attique à louer - Oberlandstrasse 1, 6345 Neuheim
Pourquoi vous aimerez ce bien
Finitions haut de gamme
Balcon couvert à l'ouest
Unité de lavage privée
Organiser une visite
Réserver une visite avec Besichtigungen aujourd'hui !
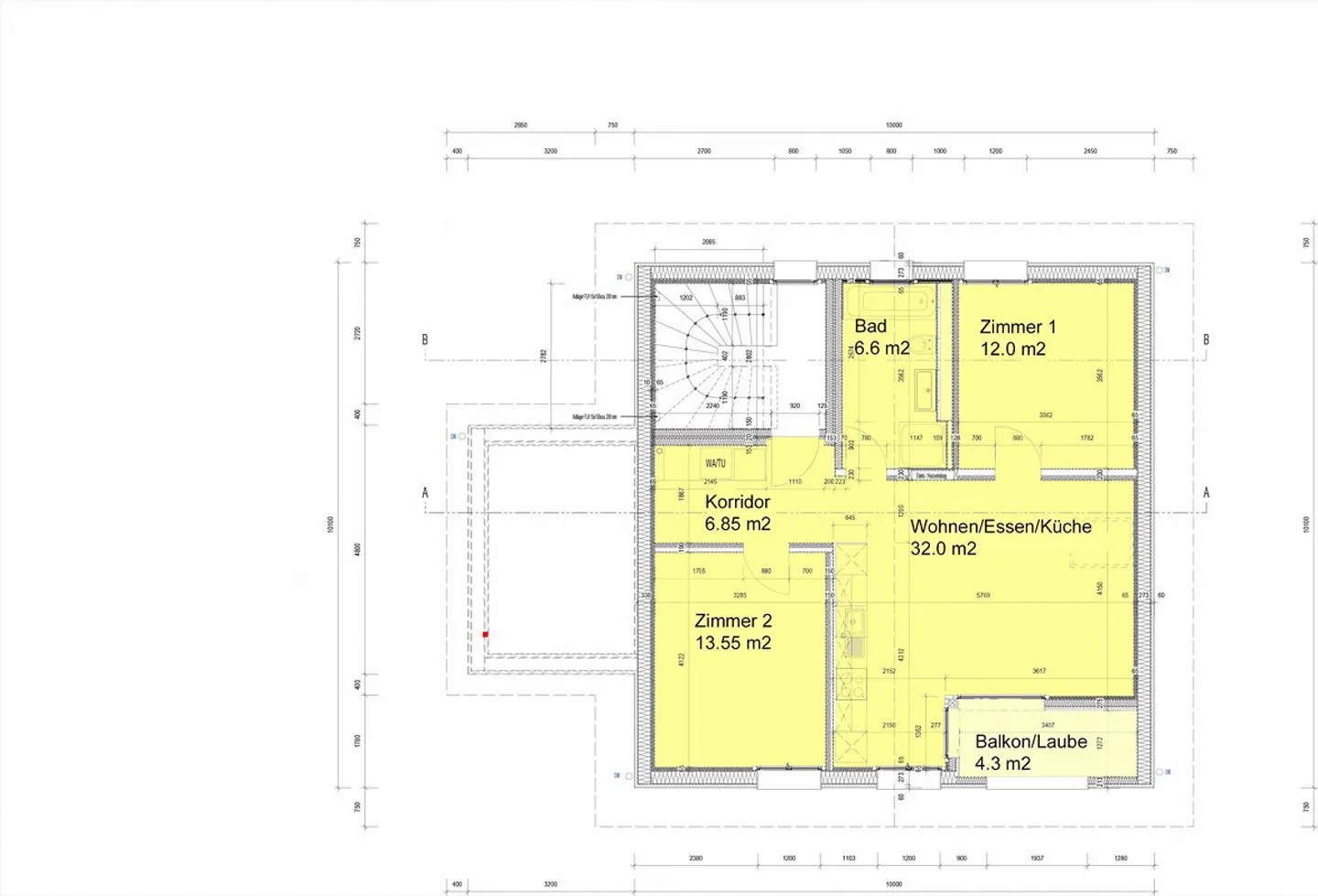
Appartement en Attique 3.5 pièces avec beaucoup de charme
- appartement en attique 3.5 pièces lumineux et confortable
- haut standard de construction
- maison multifamiliale avec un total de 3 appartements
- placards intégrés dans l'entrée
- éclairages muraux dans le couloir
- chambres avec plafonds en pente, plafonds lambrissés
- balcon/porche couvert (orientation ouest)
- propre tour de lavage (WA/WT : Schulthess)
- revêtements de sol : parquet en chêne dans le salon/salle à manger, couloir et chambre
- revêtements de sol : carreaux de céramique dans la cuisi...
Détail des loyers
- Loyer net
- CHF 2’480
- Coûts supplémentaires
- CHF 230
- Total des loyers
- CHF 2’480
Détails du bien
- Disponible à partir de
- Sur accord
- Pièces
- 3.5
- Année de construction
- 2017
- Surface habitable
- 70 m²
- Étage
- 9ème
- Étages du bâtiment
- 3



