Appartement mansardé moderne de 2.5 pièces (nouvelle construction) avec grande terrasse
Pourquoi vous aimerez ce bien
Terrasse spacieuse avec vue
Cuisine moderne avec îlot
Quartier calme et familial
Organiser une visite
Réserver une visite avec Widmer aujourd'hui !
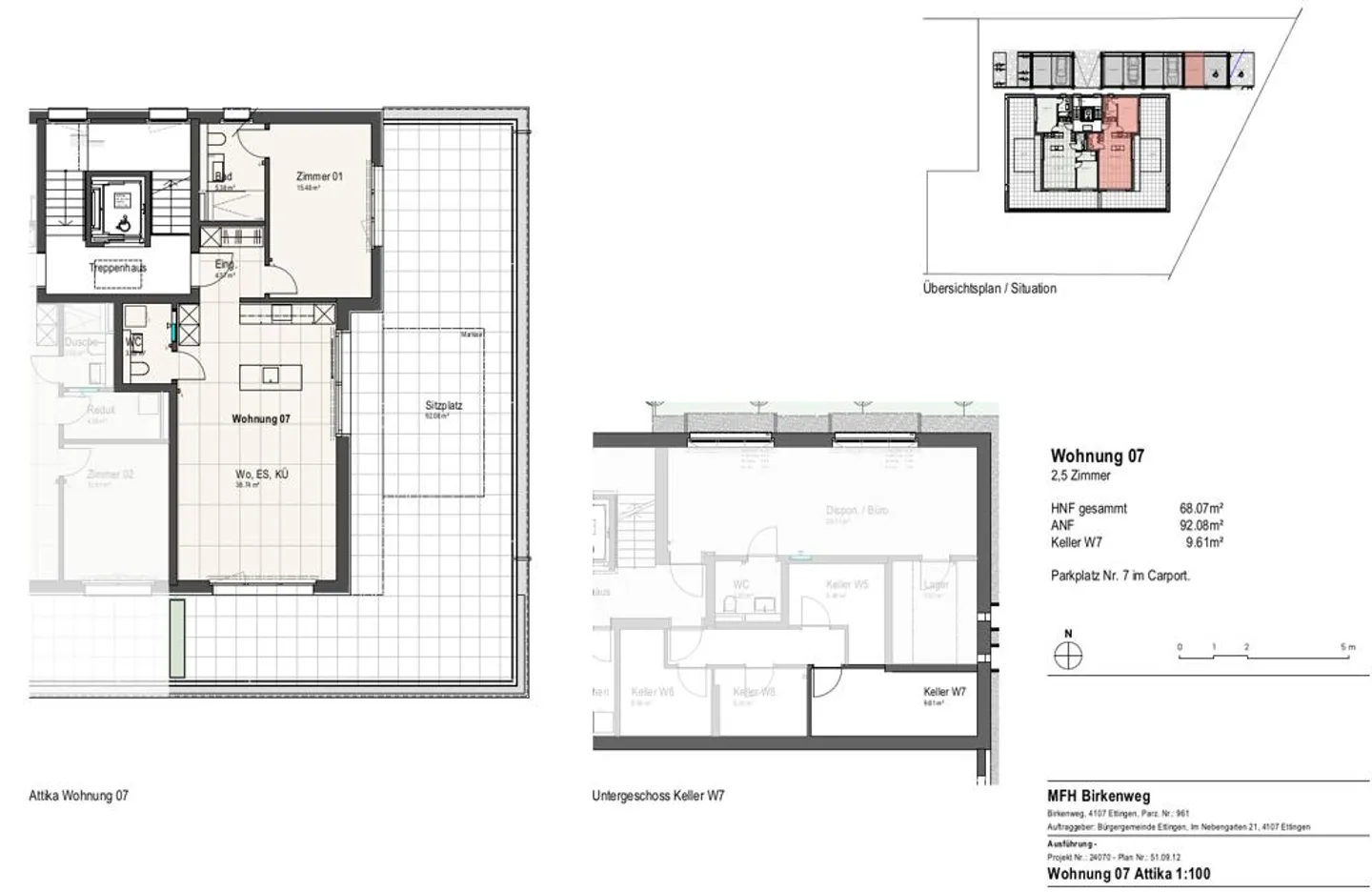
Découvrez ce charmant appartement mansardé de 2.5 pièces dans un immeuble neuf moderne comprenant un total de 8 appartements et un studio à Ettingen. L'appartement de 68.1 m² séduit par son agencement bien pensé et ses équipements de haute qualité. L'appartement offre : - Cuisine moderne : avec îlot de cuisson, four encastré et lave-vaisselle - 1 chambre : Pièces lumineuses avec de grandes fenêtres - Salon : Espace de vie spacieux - Salle de bain : Équipée de manière moderne avec WC/douche - WC ...
Détail des loyers
- Loyer net
- CHF 2'450
- Coûts supplémentaires
- CHF 300
- Total des loyers
- CHF 2'450
Détails du bien
- Disponible à partir de
- Sur accord
- Pièces
- 2.5
- Année de construction
- 2026
- Surface habitable
- 68 m²
- Étage
- 9ème



