Terrain industriel à vendre - Route De Payerne, 1532 Fétigny
Pourquoi vous aimerez ce bien
Emplacement privilégié à Fétigny
Halle multi-fonctionnelle prévue
Espaces modulables pour flexibilité
Organiser une visite
Réserver une visite aujourd'hui !
Fétigny, à vendre, terrain industriel équipé, avec permis en force !
Fétigny, à vendre, terrain industriel équipé, avec permis en force !
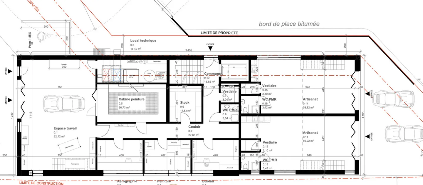
Ce terrain idéalement placé à l'entrée du village de Fétigny, dans une zone industrielle, proche du village de Fétigny et de Payerne.
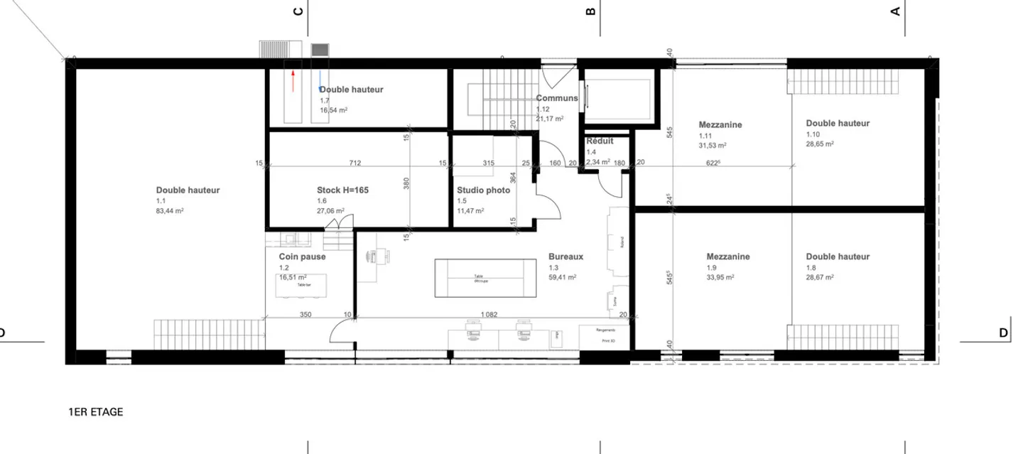
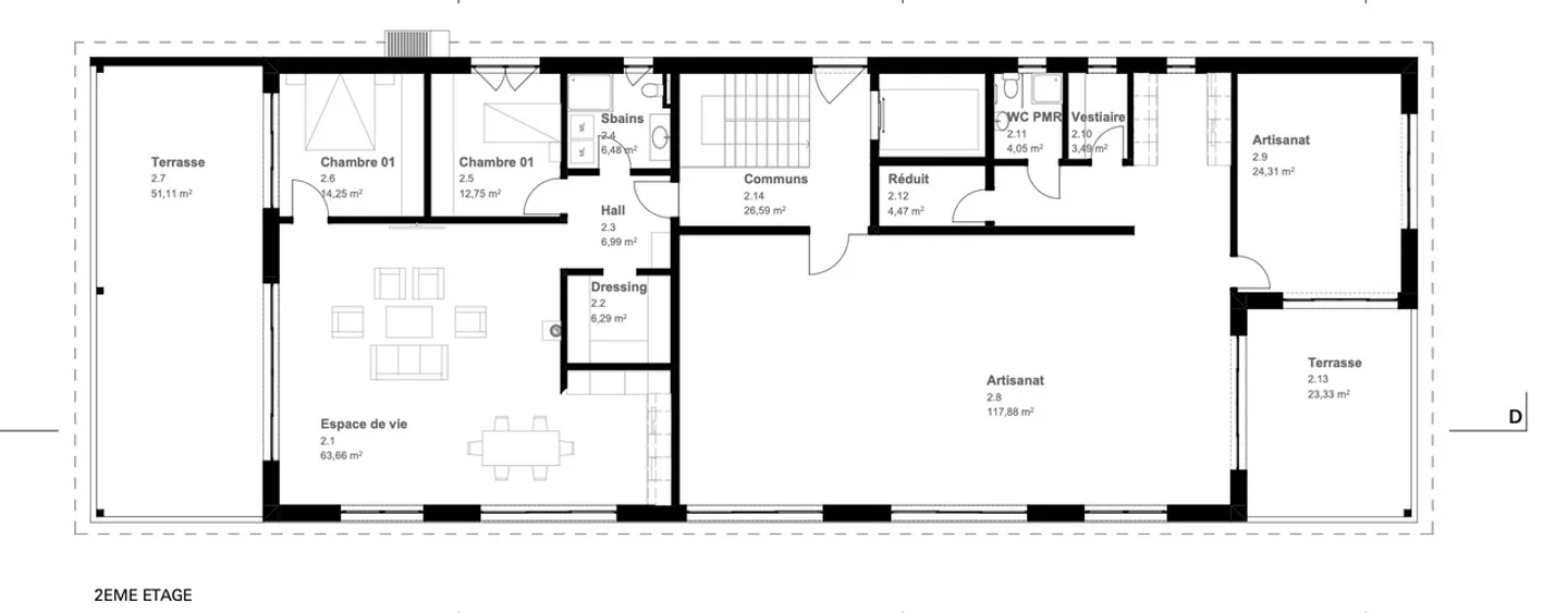
La demande de permis est en cours pour une halle multi-fonctions avec les caractéristiques suivantes.
Au rez-de-chaussée :
- un espace dédié à l'artisanat, composé de plusieurs espaces avec une double hauteur (halle, bureaux, sanitaires, cafétéria, ...)
- deux surfaces "street-box" avec double haut...
Détails du bien
- Disponible à partir de
- 04.11.2025
- Surface du terrain
- 1724 m²



