Arriver, respirer – vivre moderne à Oberuzwil
Pourquoi vous aimerez ce bien
Quartier calme et familial
Haute efficacité énergétique
Options de design personnalisables
Organiser une visite
Réserver une visite avec Marty aujourd'hui !
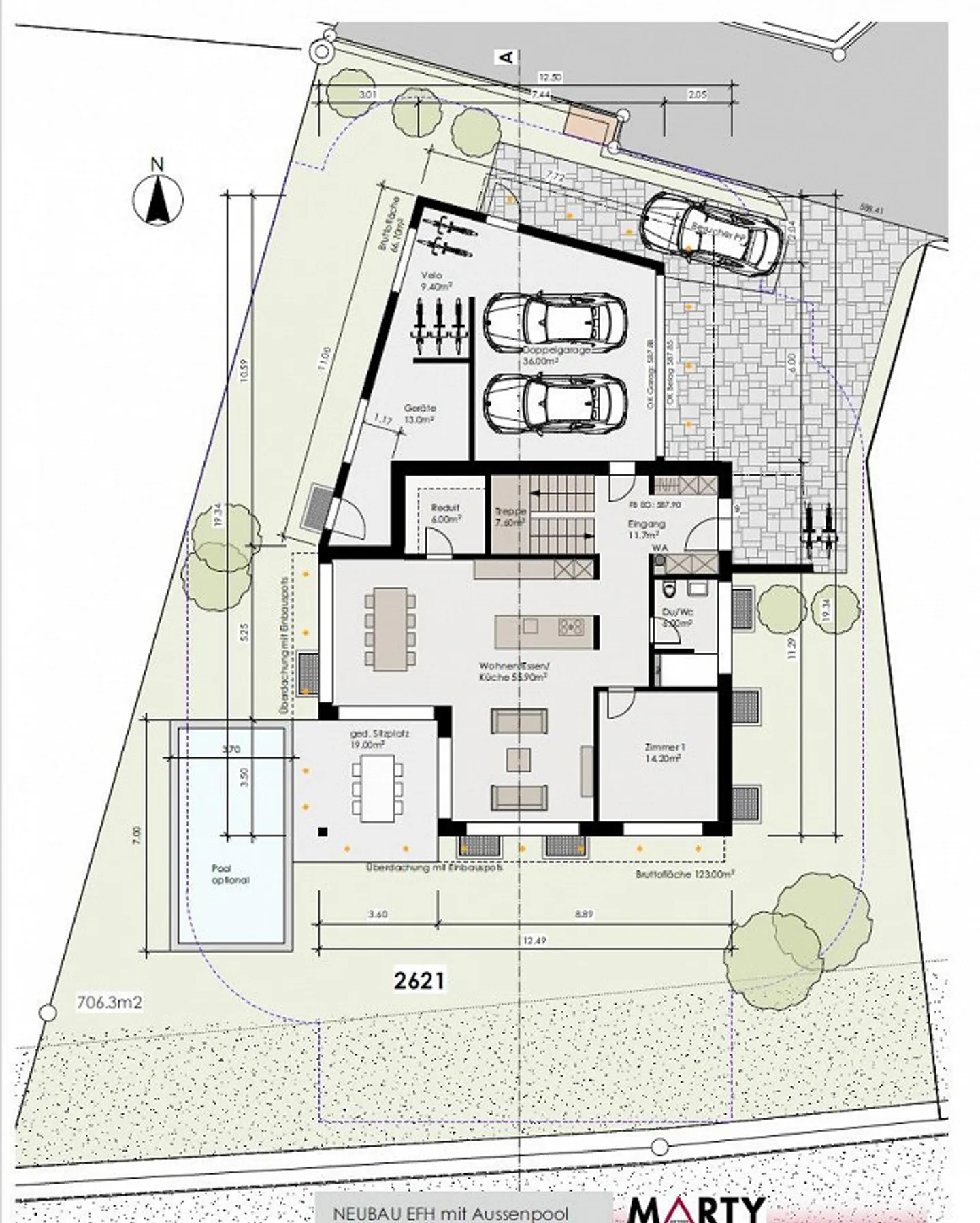
Dans un quartier résidentiel calme et nouvellement développé à Oberuzwil, votre nouveau chez-vous est en train de se créer – moderne, bien pensé et intégré à la lisière de l'urbanisation.
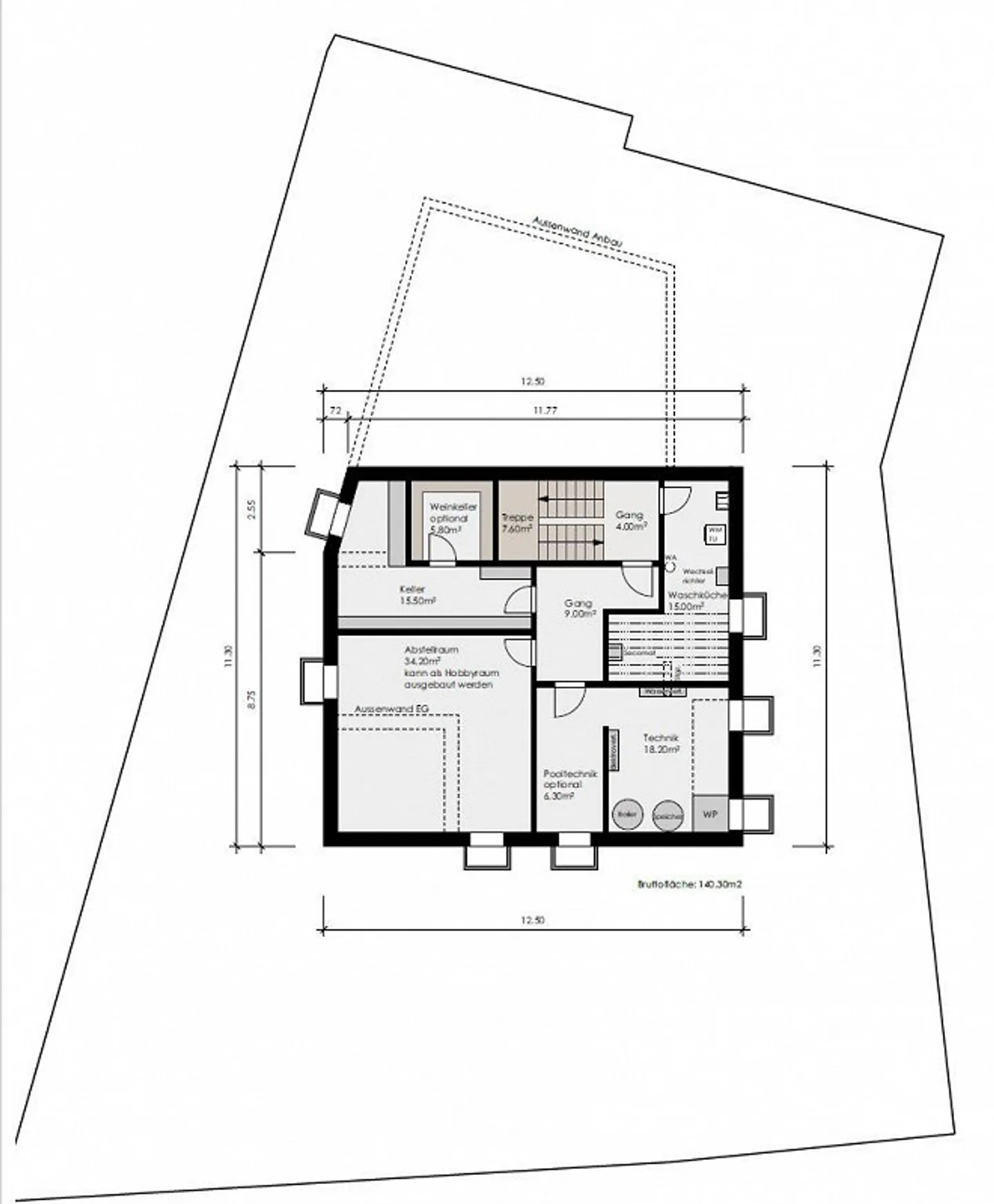
Le terrain est vendu en combinaison avec un concept architectural et de construction et vous offre une base claire et de haute qualité pour la réalisation de votre propre maison.
Projet total à partir d'environ 1,95 million CHF jusqu'à environ 2,30 millions CHF.
Dans un emplacement calme et familial à la lisière d...
Détails du bien
- Disponible à partir de
- Sur accord
- Surface du terrain
- 706 m²



