Terrain constructible à vendre - Rue Du Chat-Perché 4, 2853 Courfaivre
Pourquoi vous aimerez ce bien
Permis de construire valide
Grande terrasse extérieure
Structure moderne en bois
Organiser une visite
Réserver une visite aujourd'hui !
À vendre Terrain à bâtir avec permis pour 3 villas Courfaivre
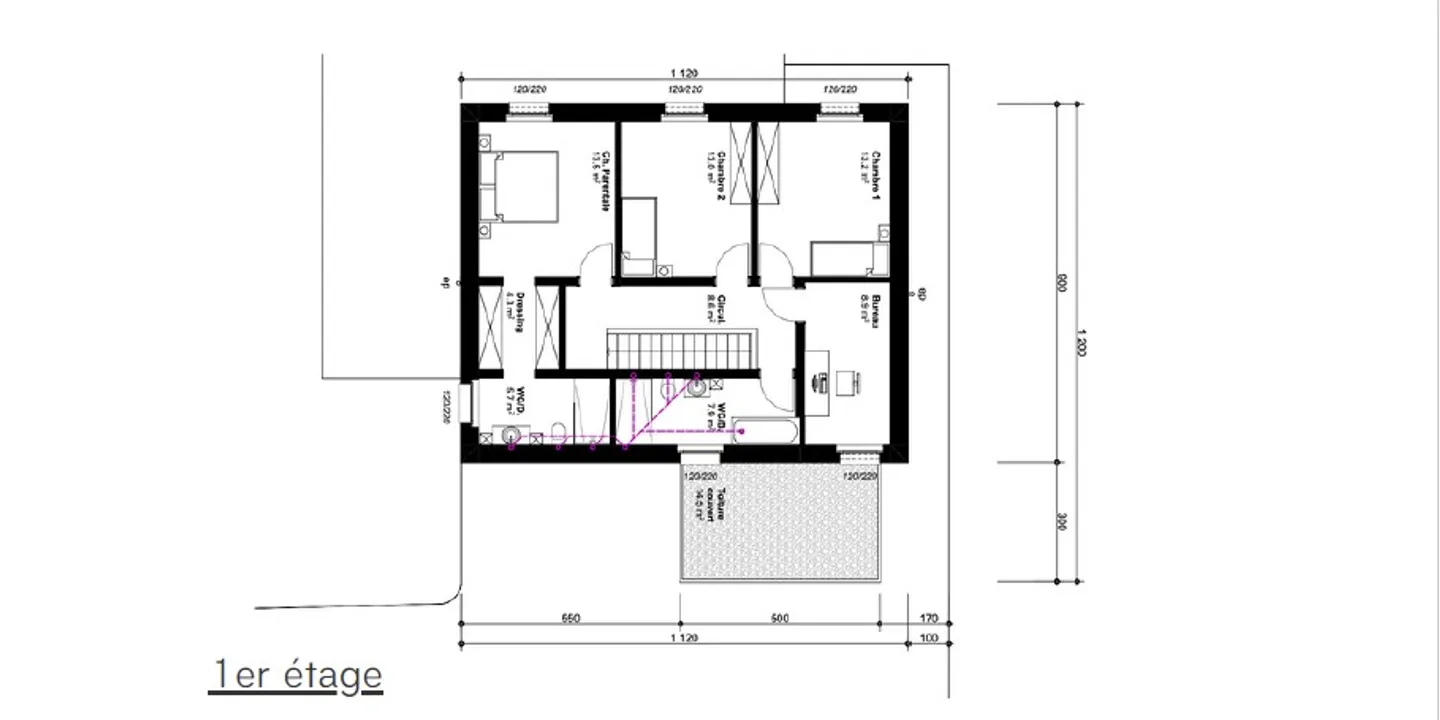
Situé à la Rue du Chat-Perché à Courfaivre, ce terrain à bâtir offre une belle opportunité de développement avec un permis de construire en vigueur pour la réalisation de 3 villas individuelles d’environ 4,5 pièces. Le projet prévoit des habitations modernes en ossature bois, réparties sur deux niveaux : Les espaces extérieurs sont pensés pour le confort, avec notamment une grande terrasse permettant de profiter pleinement de l’environnement. Les parcelles totalisent environ 1'493 m², idéales po...
Détails du bien
- Disponible à partir de
- Sur accord
- Surface du terrain
- 1493 m²
Caractéristiques
Agence



