Garage double à vendre - Unterer Batterieweg 145, 4059 Basel
Pourquoi vous aimerez ce bien
Accès sécurisé par clé
Espace pour voitures et vélos
Disponibilité immédiate
Organiser une visite
Réserver une visite avec Patric aujourd'hui !
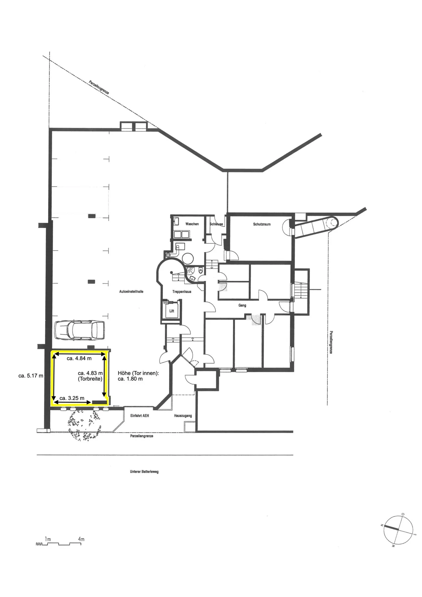
Box de garage à bâle sur bruderholz
Pour le stationnement de vos véhicules, nous vendons dans le garage une box de garage avec deux places.
La box de garage convient pour une voiture et des motos, un quad ou des vélos électriques. Le garage pour voitures est accessible par clé et par télécommande, la box de garage est accessible par clé.
La box de garage est disponible immédiatement ou sur rendez-vous.
Avez-vous éveillé notre intérêt ?
Nous nous réjouissons de votre prise de contact.
Détails du bien
- Disponible à partir de
- 31.10.2025
- Année de construction
- 1991
- Surface habitable
- 25 m²
- Surface utilisable
- 25 m²




