Maison individuelle à vendre - Grundstrasse, 8580 Amriswil
Pourquoi vous aimerez ce bien
Design durable de haute qualité
Jardins spacieux pour loisirs
Zone calme idéale pour familles
Organiser une visite
Réserver une visite avec Perolini aujourd'hui !
Vivre de manière durable et de haute qualité près du lac
Bienvenue à AMRIS-TERRA, qui va bien au-delà de la simple construction. Ici, nous créons des espaces de vie qui relient les gens, les générations et les idées. C'est un endroit où les histoires naissent, et vous pouvez en faire partie. Une maison solide, saine, durable et contemporaine.
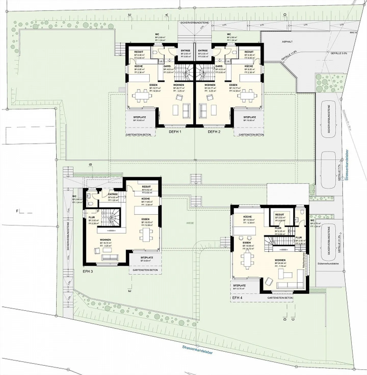
Avec deux maisons jumelées et deux maisons individuelles, nous vous offrons un espace de vie moderne dans un emplacement calme et pourtant bien desservi.
Vos avantages en un coup d'œil :
- Architecture de haute qual...
Détails du bien
- Disponible à partir de
- Sur accord
- Pièces
- 6.5
- Année de construction
- 2026
- Surface habitable
- 224 m²
- Surface du terrain
- 420 m²
- Volume du bâtiment
- 1221 m³



