Maison jumelle à vendre - Chemin Plein-Sud, 1226 Thônex
Pourquoi vous aimerez ce bien
Espaces de vie lumineux
Terrasse spacieuse
Conception familiale
Organiser une visite
Réserver une visite avec Jack aujourd'hui !
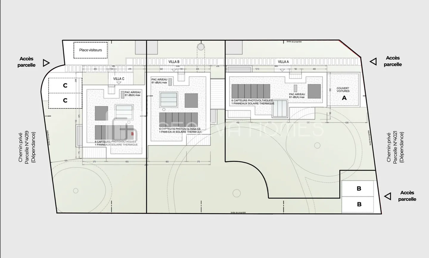
Découvrez notre nouveau projet de 3 villas Hautes Performances Énergétiques (HPE) à Thônex, alliant confort, modernité et qualité de vie.
Ce projet exclusif se compose de trois villas contemporaines, pensées pour offrir à leurs futurs occupants un cadre de vie fonctionnel, lumineux et durable.
La Villa B, offre environ 200m2 habitables et 300m2 utiles, sur une parcelle de 456 m², se développe sur trois niveaux, organisés comme suit :
Un rez-de-chaussée comprenant :
* un hall d'entrée avec armoire...
Détails du bien
- Disponible à partir de
- Sur accord
- Pièces
- 5
- Année de construction
- 2026
- Surface habitable
- 200 m²
- Surface utilisable
- 300 m²
- Surface du terrain
- 456 m²



