Villa à vendre - Chemin De La Foge, 1291 Commugny
Pourquoi vous aimerez ce bien
Emplacement calme en impasse
Espace de vie spacieux de 90 m²
Grand jardin privé oasis
Organiser une visite
Réserver une visite avec Marcus aujourd'hui !
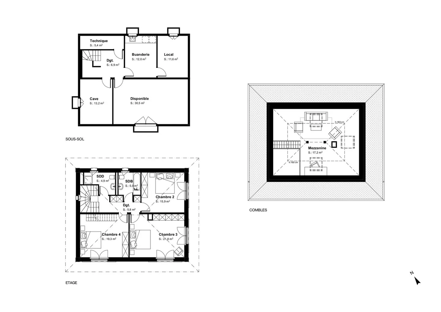
Villa de 7,5 pièces à Commugny avec projet de rénovation et d'agrandissement
Une villa individuelle avec un projet d'agrandissement et de rénovation, évalué positivement par les autorités, est située dans la commune de Commugny, dans un quartier calme et recherché, au bout d'une impasse.
Le projet comprend une rénovation complète de la villa avec l'ajout d'un bureau au rez-de-chaussée ainsi qu'une grande suite parentale de 40 m2.
L'extension bénéficie d'un salon avec cuisine de 90 m2 et d'une terrasse couverte de plus de 20 m2.
L'ensemble sera chauffé par une pompe à chaleu...
Détails du bien
- Disponible à partir de
- Sur accord
- Pièces
- 7.5
- Année de construction
- 2002
- Année de rénovation
- 2026
- Surface habitable
- 305 m²
- Surface du terrain
- 1473 m²




