Maison en terrasse à vendre - Bodenacherstrasse, 4414 Füllinsdorf
Pourquoi vous aimerez ce bien
Construction durable Minergie
Espaces de vie lumineux
Design intérieur personnalisable
Organiser une visite
Réserver une visite aujourd'hui !
Il ne reste qu'une maison de trois maisons de ville premium approuvées
Votre nouvelle maison à Füllinsdorf - moderne, durable et avec une vue dégagée
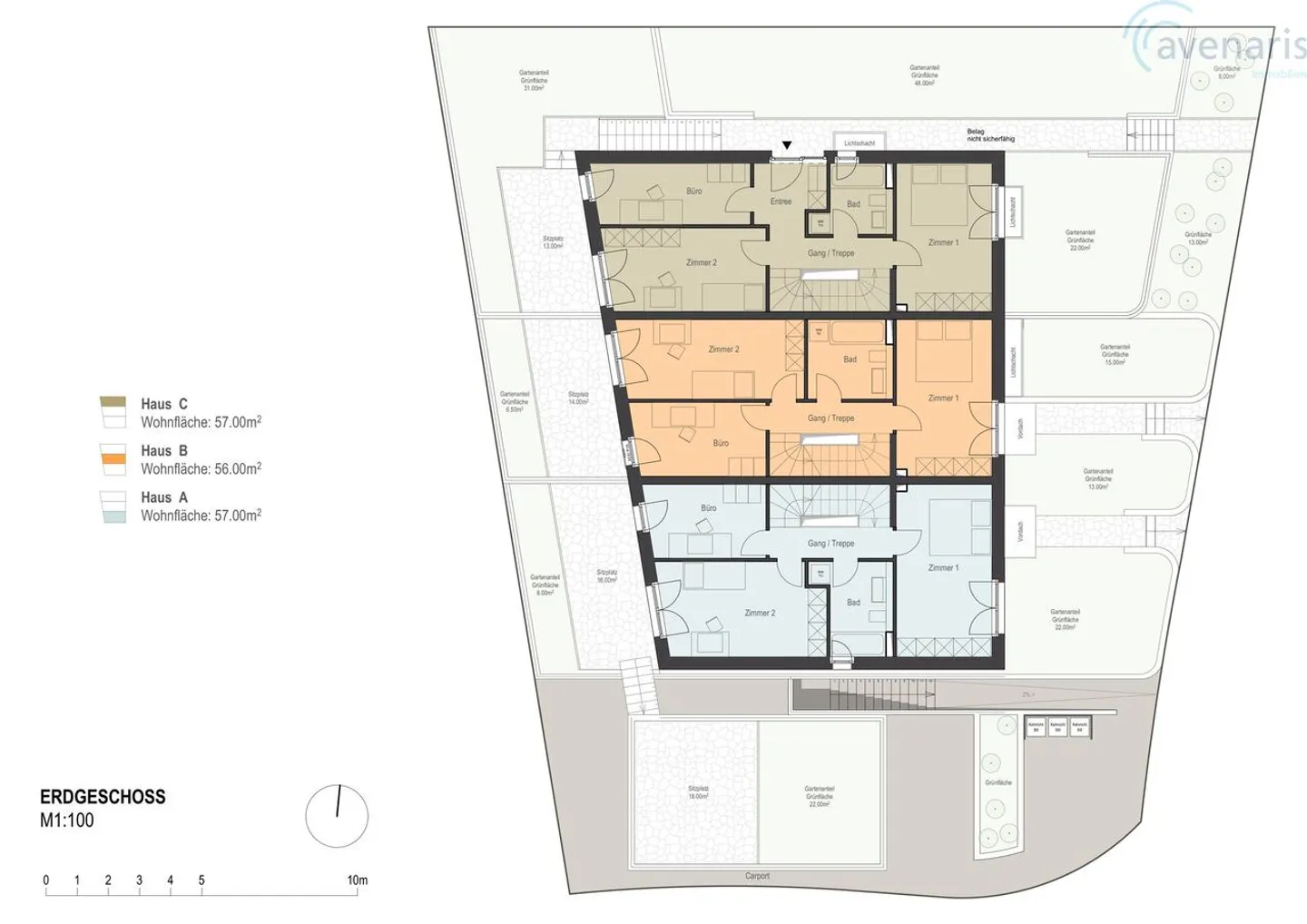
Trois maisons de ville exclusives sont en cours de construction selon les normes Minergie dans la commune ensoleillée de Füllinsdorf - parfait pour ceux qui souhaitent profiter d'un mode de vie proche de la nature sans sacrifier la proximité de la ville. La construction a commencé. La maison A et B sont déjà vendues. La maison C serait encore disponible.
Ces maisons modernes de 5,5 pièces vous offrent une combinaison ...
Détails du bien
- Disponible à partir de
- Sur accord
- Pièces
- 5.5
- Année de construction
- 2025
- Surface habitable
- 148 m²
- Surface utilisable
- 166 m²
- Surface du terrain
- 259 m²



