Maison individuelle à vendre - Badstrasse, 9410 Heiden
Pourquoi vous aimerez ce bien
Jardin spacieux avec gazebo
Cuisine moderne ouverte
Zone calme et familiale
Organiser une visite
Réserver une visite avec 7 aujourd'hui !
Heiden : maison élégante de 6 1/2 pièces au centre du village - haute qualité de vie
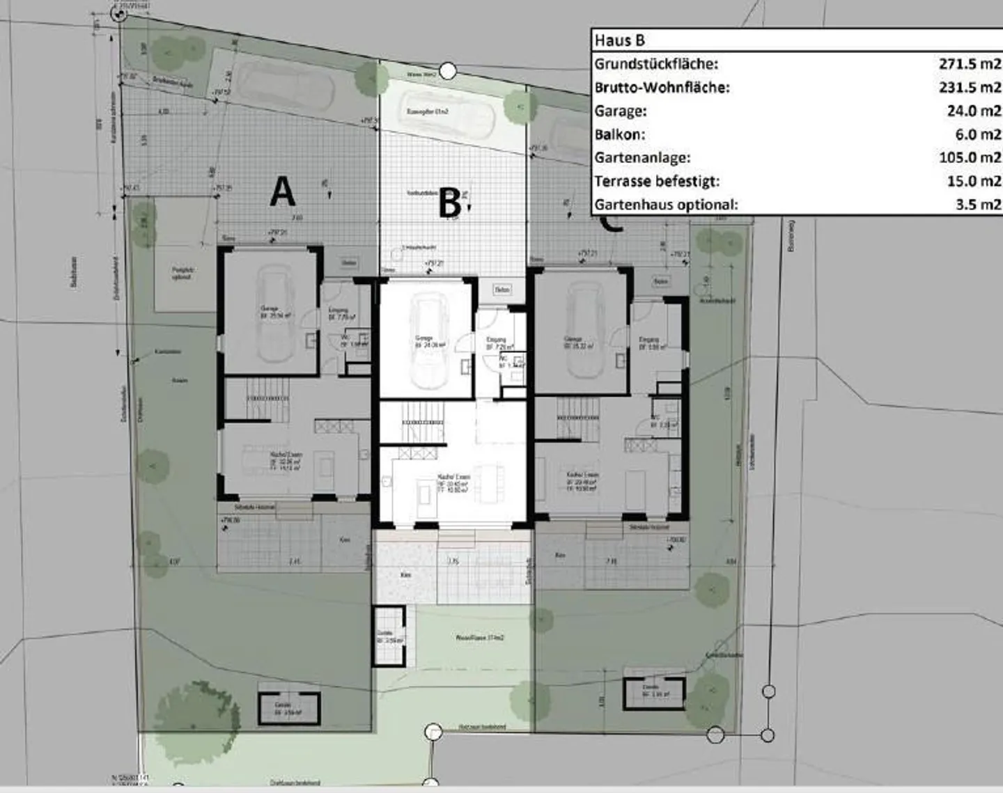
Découvrez notre maison mitoyenne attrayante et spacieuse de 6,5 pièces, construite en 2024, avec une ambiance méridionale, un jardin privé et une maison de jardin dans un emplacement très calme et adapté aux enfants, dans une zone de 30 km/h, près du centre et des écoles ! - Surface habitable brute 231,5 m2 - Surface du terrain 271,5 m2 - Espace de détente idyllique - Cuisine Baumann ouverte et moderne avec coin repas, avec accès au jardin - À l'étage : beaucoup de calme et d'options de retrait ...
Détails du bien
- Disponible à partir de
- Sur accord
- Pièces
- 6.5
- Année de construction
- 2024
- Surface habitable
- 231.5 m²
- Surface du terrain
- 271.5 m²




