Maison en terrasse à vendre - 8572 Berg TG
Pourquoi vous aimerez ce bien
Emplacement idyllique au bord du bois
Chambre principale avec salle de bain
Système de chauffage économe en énergie
Organiser une visite
Réserver une visite avec Sead aujourd'hui !
Rêve de Famille au Bord de la Forêt
Dans un emplacement calme et idyllique à la lisière de la forêt à 8572 Berg, votre nouvelle maison est en train de se créer - une maison jumelée moderne qui impressionne par des matériaux de haute qualité, des pièces lumineuses et un agencement adapté aux familles.
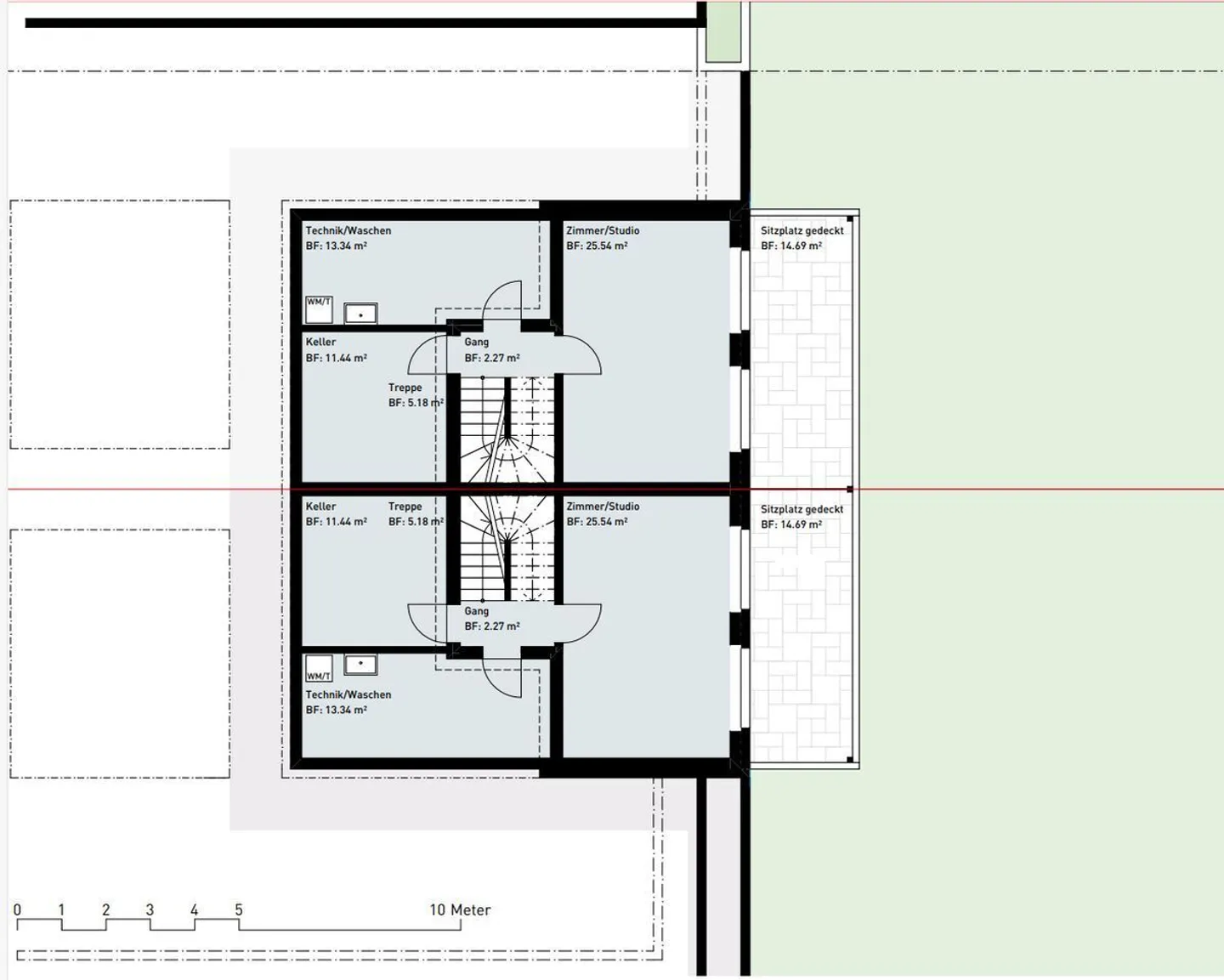
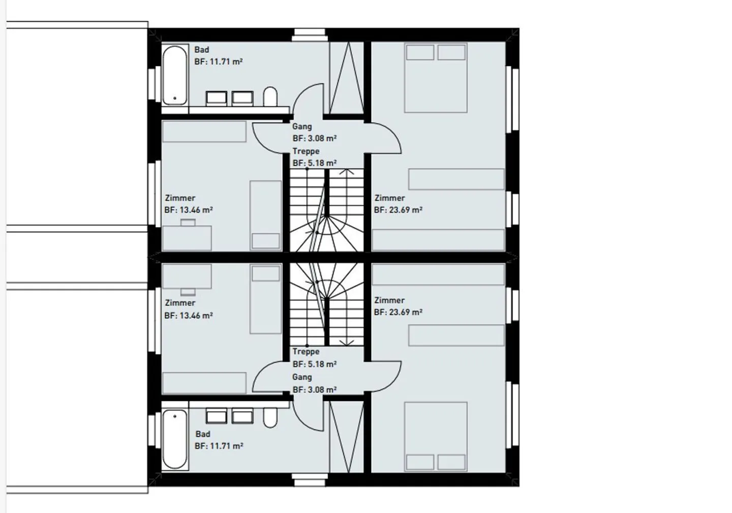
Avec une surface habitable généreuse de 193 m², cette maison offre suffisamment d'espace pour toute la famille. Le salon et la salle à manger ouverts avec un accès direct au jardin créent une atmosphère accueillante et invitent à la d...
Détails du bien
- Disponible à partir de
- 06.06.2026
- Pièces
- 6.5
- Année de construction
- 2024
- Surface habitable
- 193 m²
- Surface du terrain
- 406 m²
- Volume du bâtiment
- 884 m³



