Maison troglodyte à vendre - 8215 Hallau
Pourquoi vous aimerez ce bien
Espaces historiques lumineux
Système de chauffage CO2 neutre
Unique avec deux entrées
Organiser une visite
Réserver une visite avec Linda aujourd'hui !
DOMUS VINUM - Espace Merveilleusement Rénové : Un Foyer pour Individualistes
Cette maison ne raconte pas une histoire, elle en écrit une nouvelle. Derrière des murs historiques, un concept de vie moderne se révèle, honorant le passé et façonnant l'avenir. La maison de ville entièrement rénovée allie élégance intemporelle et confort moderne. Des pièces baignées de lumière et des détails historiques créent une atmosphère unique.
Voici quelques points forts :
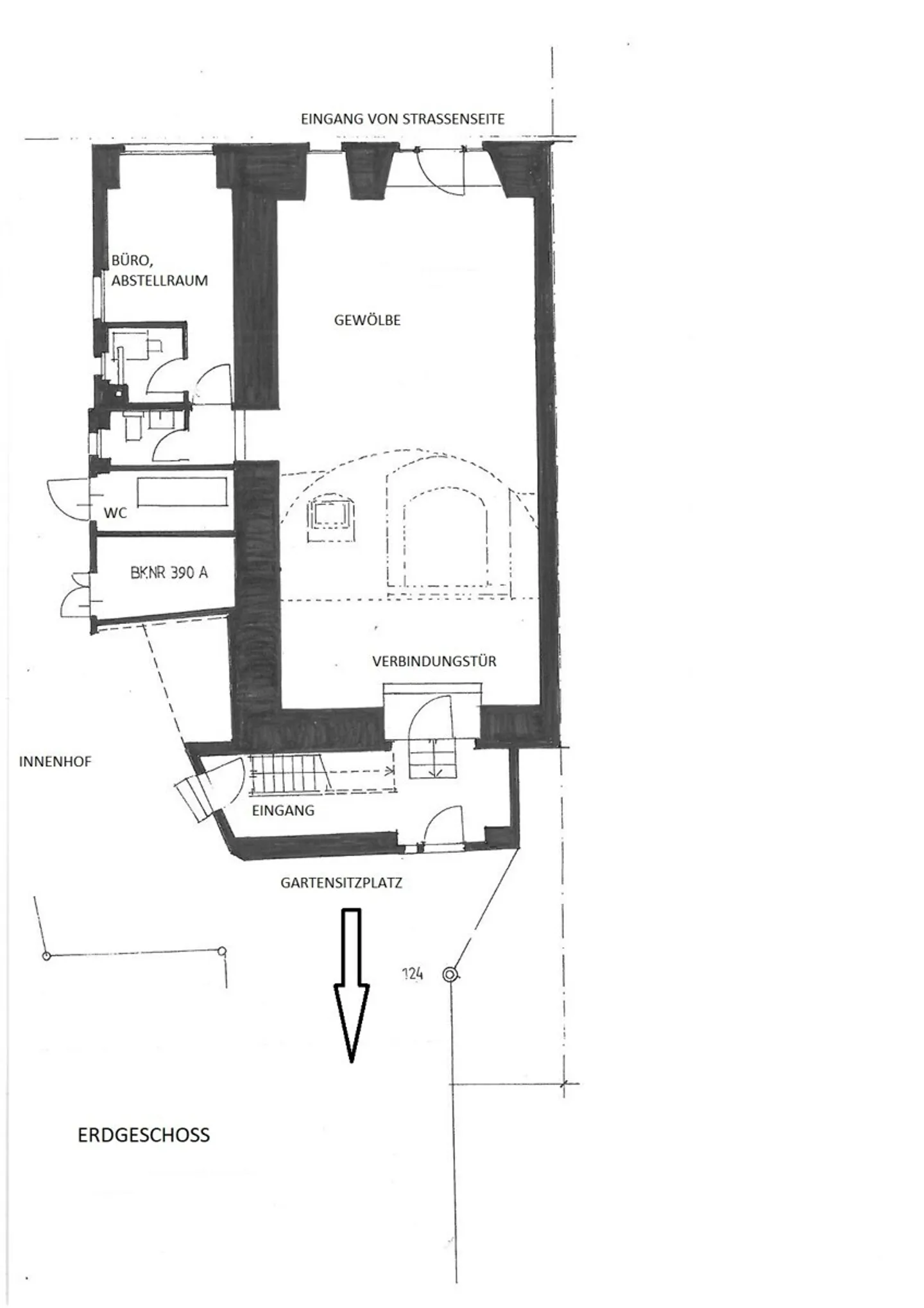
*243 m2 de surface habitable et 79 m2 de surface commerciale au rez-de-chaussée
Pièce unique avec deux entrées
*...
Détails du bien
- Disponible à partir de
- Sur accord
- Pièces
- 7
- Année de construction
- 2006
- Surface habitable
- 322 m²
- Surface du terrain
- 286 m²
- Volume du bâtiment
- 1820 m³



