Chalet à vendre - 7460 Savognin
Pourquoi vous aimerez ce bien
Projet de rénovation approuvé
Jardin et terrasse spacieux
Technologie durable moderne
Organiser une visite
Réserver une visite avec Manfred aujourd'hui !
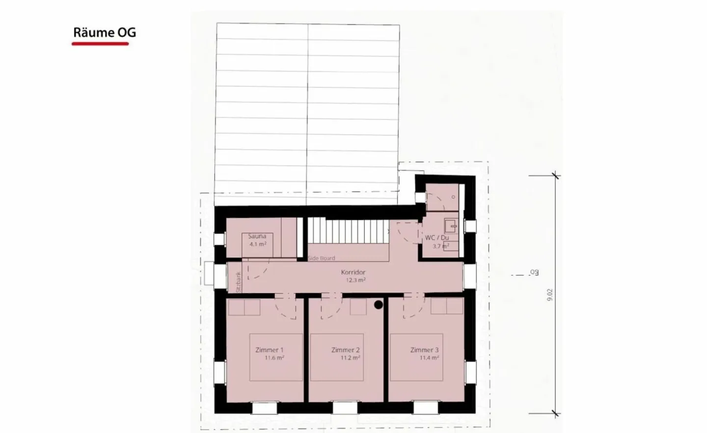
Projet de Maiensäss de 5,5 pièces au cœur de la station de ski de Radons
Entrepôt avec projet de construction approuvé pour un Maiensäss
Cet entrepôt extraordinaire datant de 1933 offre la rare opportunité de réaliser un projet de rénovation de Maiensäss approuvé dans un emplacement élevé exclusif selon vos propres idées. La propriété est vendue avec un permis de construire légalement valide, mais sans aucune obligation de construction. L'utilisation future est prévue comme une maison individuelle de 5,5 pièces et convient à la fois comme résidence principale et secon...
Détails du bien
- Disponible à partir de
- Sur accord
- Pièces
- 5.5
- Année de construction
- 1933
- Surface habitable
- 204 m²
- Surface utilisable
- 204 m²
- Surface du terrain
- 1523 m²




