Maison individuelle à vendre - 6924 Sorengo
Pourquoi vous aimerez ce bien
Jardin spacieux de 700 m²
Intérieurs élégants avec cheminée
Terrasse panoramique pour se détendre
Organiser une visite
Réserver une visite avec Stabile aujourd'hui !
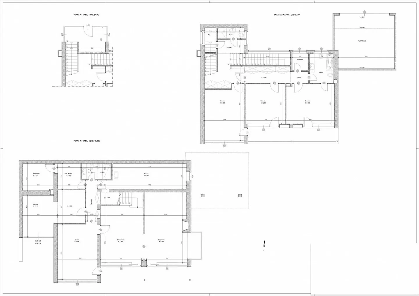
Maison exclusive et spacieuse de 6,5 pièces avec jardin à Sorengo
Dans un emplacement privilégié et calme, entouré par le paysage verdoyant de Sorengo, nous proposons à la vente une magnifique villa de 6,5 pièces, 270 m² et un grand jardin sur un grand terrain de 1100 m², construite en 1984 par l'architecte Tami et parfaitement entretenue. La propriété s'étend sur trois niveaux et offre des espaces généreux et de la luminosité dans chaque zone, à proximité de tous les services nécessaires.
La villa, qui s'étend sur trois étages, se compose de :
Accès depuis l'...
Détails du bien
- Disponible à partir de
- Sur accord
- Pièces
- 6.5
- Année de construction
- 1984
- Surface habitable
- 270 m²
- Surface utilisable
- 270 m²
- Surface du terrain
- 1100 m²



