Maison individuelle à vendre - 6914 Carona
Pourquoi vous aimerez ce bien
Grand jardin privé
Cuisine ouverte moderne
Emplacement prestigieux à Carona
Organiser une visite
Réserver une visite avec Stabile aujourd'hui !
Maison exclusive et spacieuse de 4,5 pièces avec jardin privé à Carona
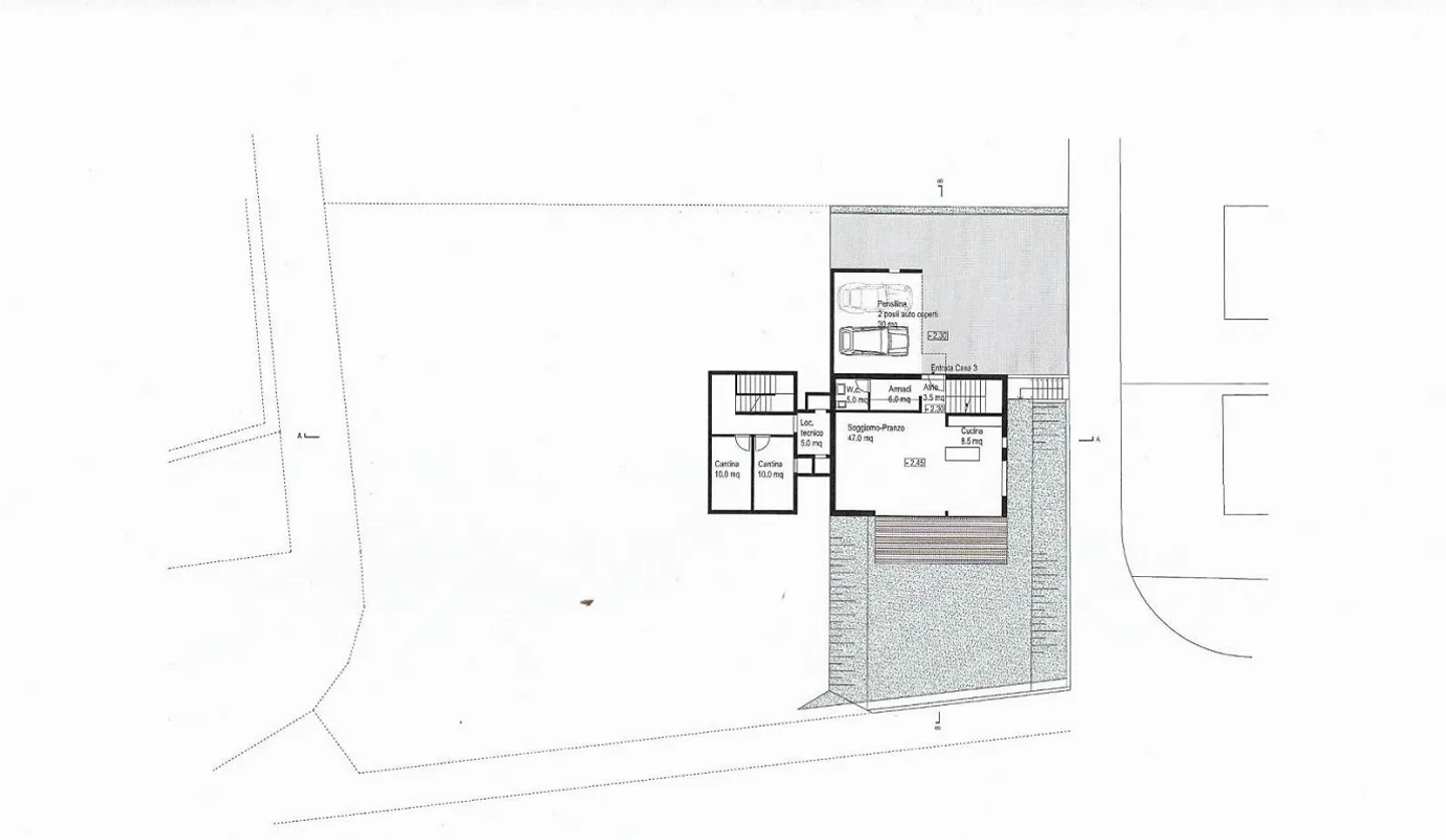
Cette magnifique villa de 4,5 pièces a été construite en 2011 sur un terrain d'environ 388 m² et offre une surface de plancher brute d'environ 200 m² ainsi qu'un grand jardin privé. La villa est située dans la prestigieuse région de Carona, dans un emplacement exclusif et privilégié, à proximité de magnifiques promenades dans la nature et à seulement 15 minutes de la ville de Lugano et de la sortie d'autoroute Lugano Sud.
La villa s'étend sur deux niveaux au-dessus du sol et un grand sous-sol et...
Détails du bien
- Disponible à partir de
- 11.04.2024
- Pièces
- 4.5
- Année de construction
- 2011
- Surface habitable
- 140 m²
- Surface utilisable
- 200 m²
- Surface du terrain
- 388 m²
- Volume du bâtiment
- 875 m³



