Maison individuelle à vendre - 6763 Mairengo
Pourquoi vous aimerez ce bien
Vue imprenable sur les montagnes
Espace jardin privé
Séjour ouvert spacieux
Organiser une visite
Réserver une visite avec Rosa aujourd'hui !
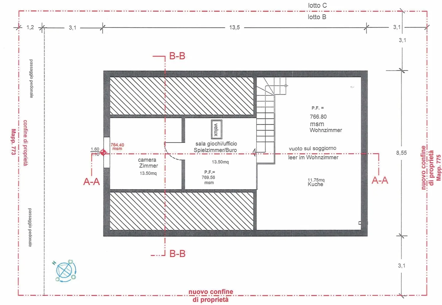
NOUVEAU CONSTRUCTION À FAIDO - MAISON INDIVIDUELLE AVEC 4,5 CHAMBRES, JARDIN ET VUE SUR LA MONTAGNE
Dans le cadre d'un nouveau projet immobilier composé de seulement trois unités résidentielles, nous proposons à la vente une maison individuelle indépendante, avec une finition prévue d'ici fin 2025.
Chaque maison résidentielle dispose de ses propres places de stationnement extérieures et d'une garantie de plus de 6 mètres de distance entre les propriétaires pour protéger la vie privée et la qualité de vie.
La propriété, (LOT A) intégrée dans la nature et avec une orientation optimale au soleil, o...
Détails du bien
- Disponible à partir de
- Sur accord
- Pièces
- 4.5
- Année de construction
- 2025
- Surface habitable
- 142 m²
- Surface du terrain
- 350 m²



