Villa à vendre - 6205 Eich
Pourquoi vous aimerez ce bien
Vue imprenable sur le Sempachersee
Jardin spacieux avec pergola
Plans d'étage personnalisables
Organiser une visite
Réserver une visite aujourd'hui !
Villa duplex exclusive avec vue de rêve sur le lac de sempach
Annonce de projet
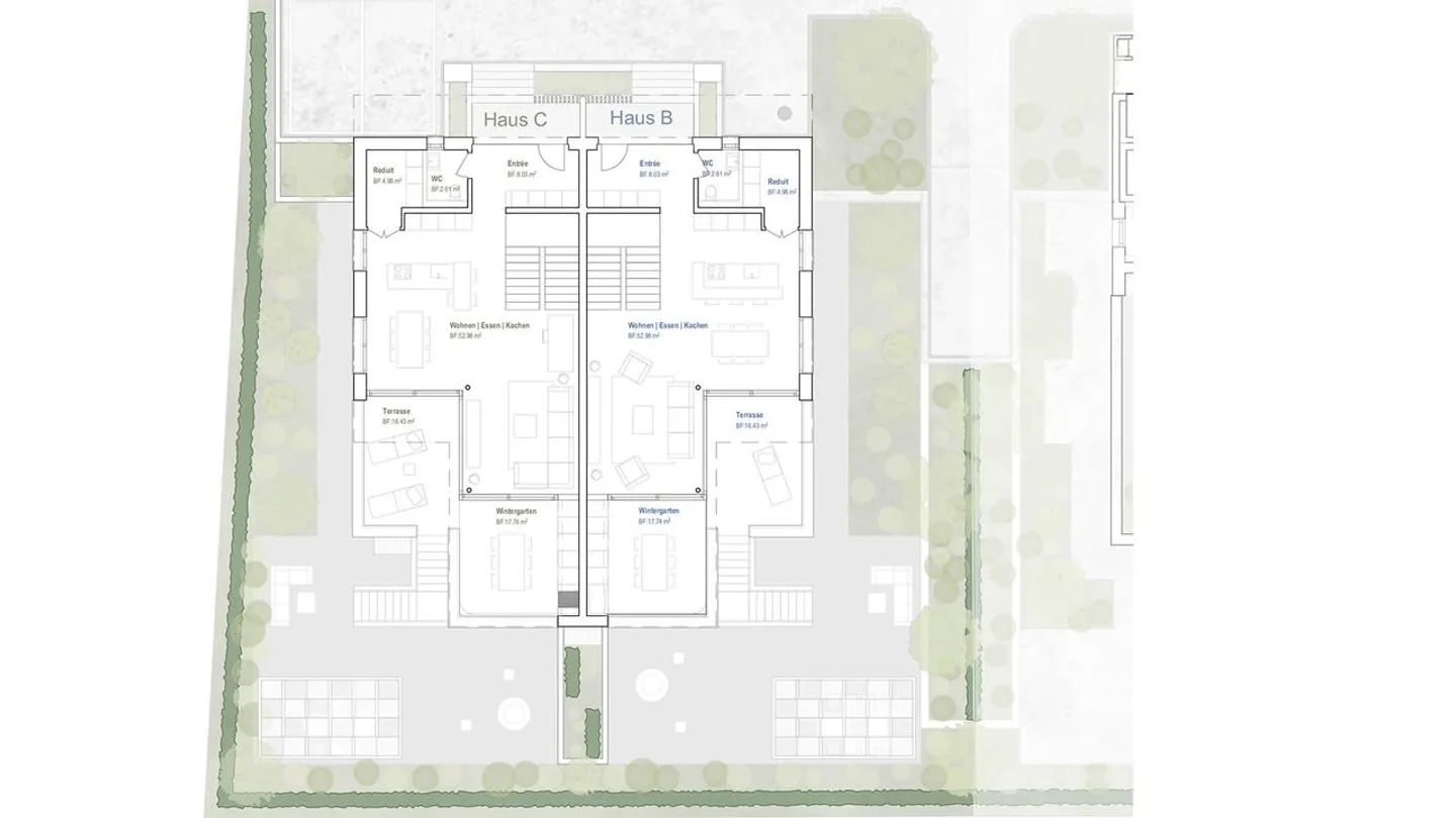
Cette unique villa duplex à Eich vous offre non seulement un espace de vie généreux sur deux niveaux, mais aussi une vue de rêve sur le lac de Sempach. L'environnement de vie élégant et les équipements de haute qualité établissent de nouvelles normes pour un logement exclusif. Les plans d'étage peuvent être adaptés selon vos souhaits personnels pour réaliser votre rêve de logement individuel.
Caractéristiques spéciales en un coup d'œil
- Vue sur le magnifique lac de Sempach
- Envir...
Détails du bien
- Disponible à partir de
- Sur accord
- Pièces
- 5.5
- Année de construction
- 2026
- Surface habitable
- 188 m²



