Maison individuelle à vendre - 6060 Ramersberg
Pourquoi vous aimerez ce bien
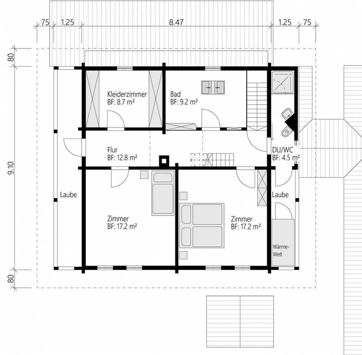
Charme historique et moderne
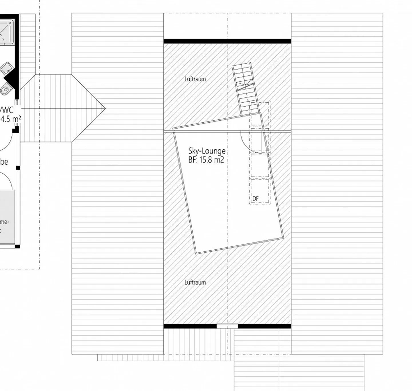
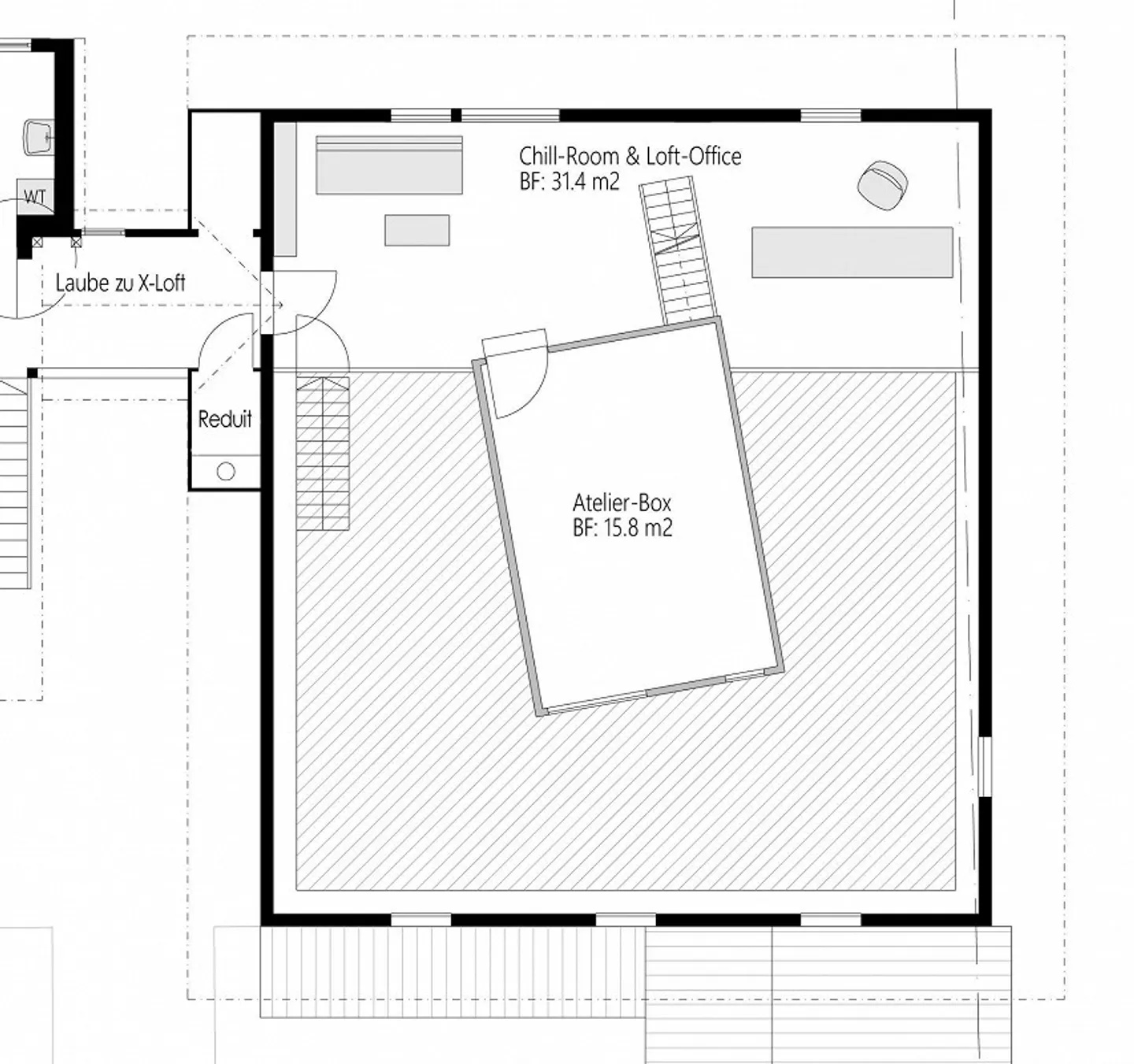
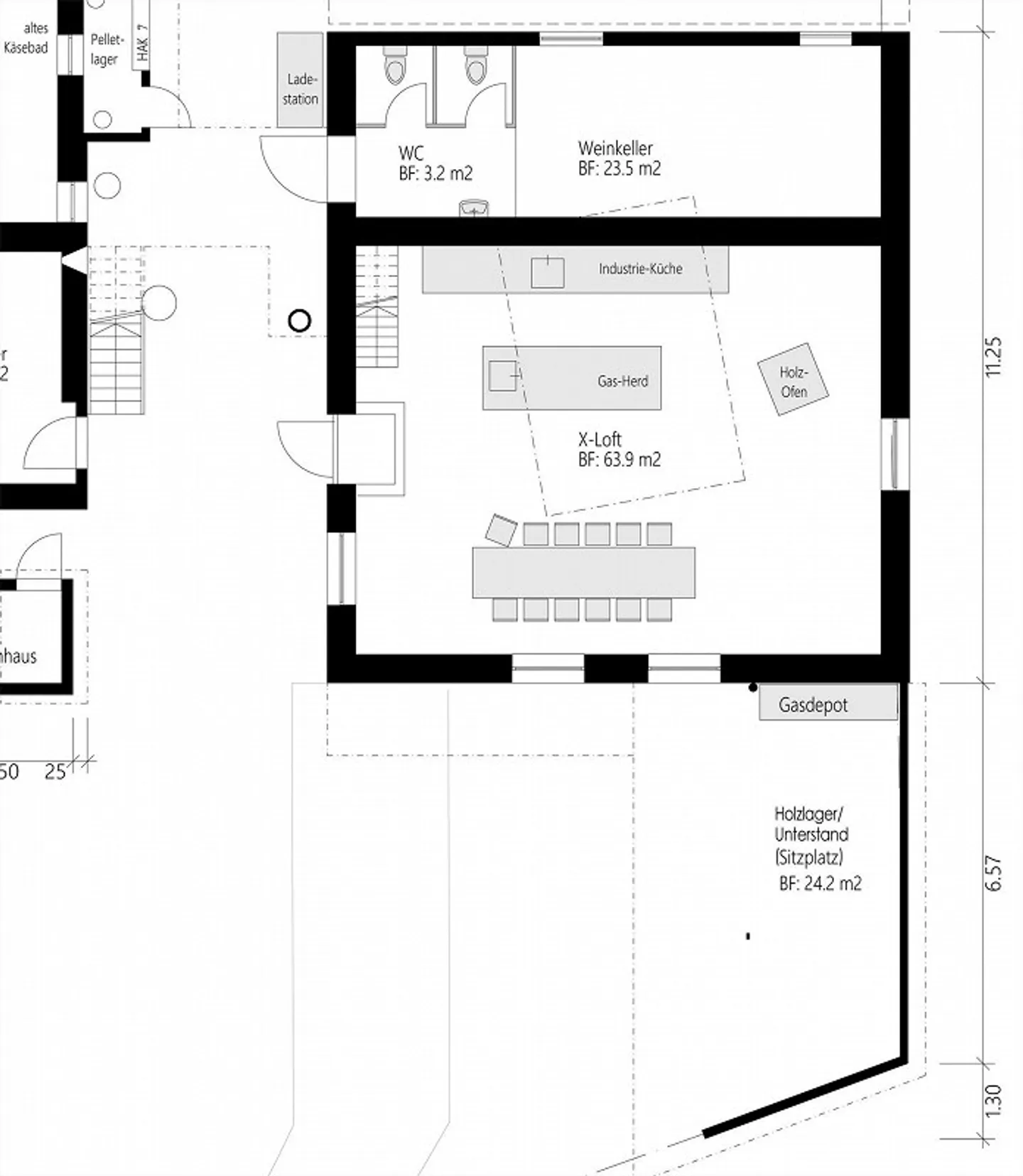
Loft spacieux et lumineux
Jardin idyllique et privé
Organiser une visite
Réserver une visite avec Fischer aujourd'hui !
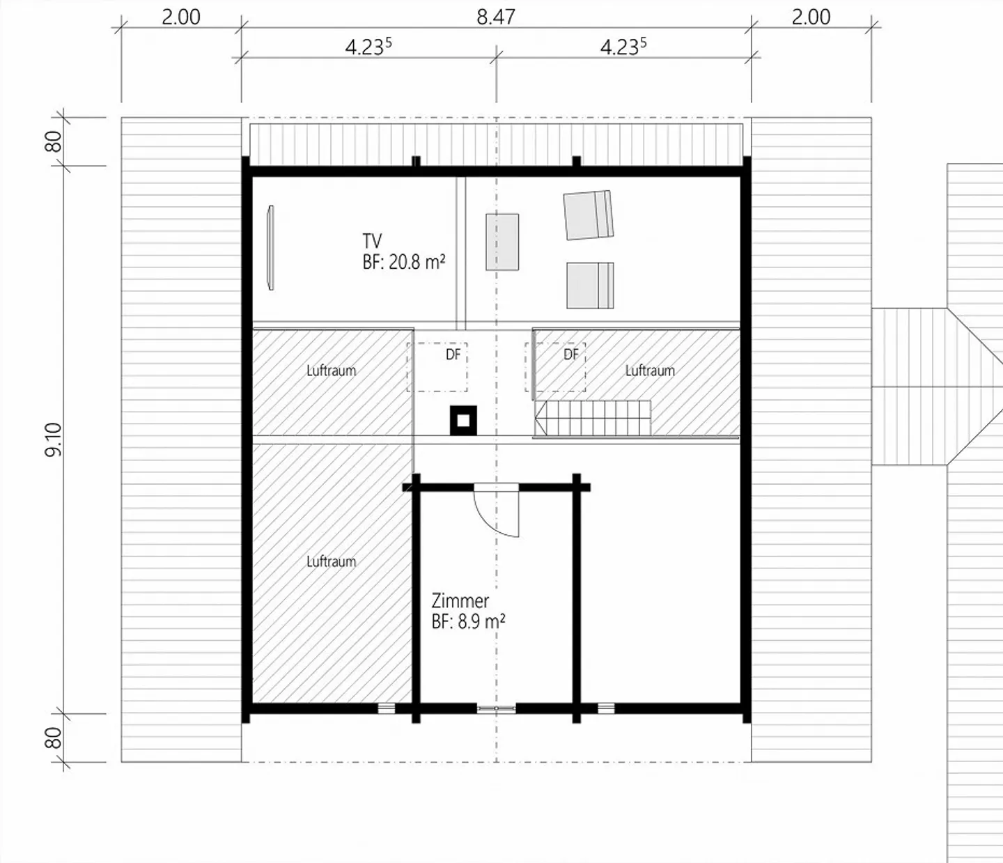
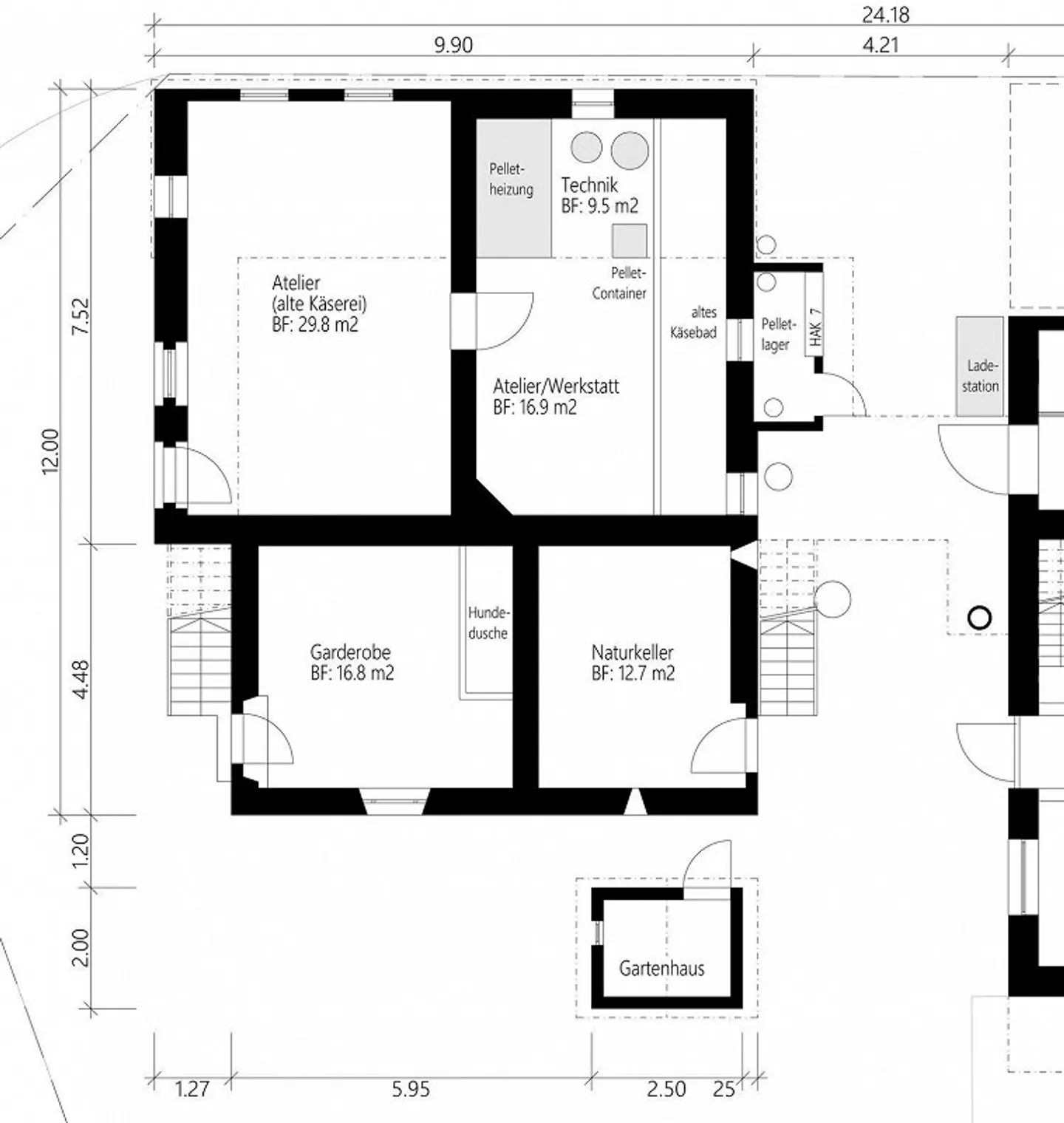
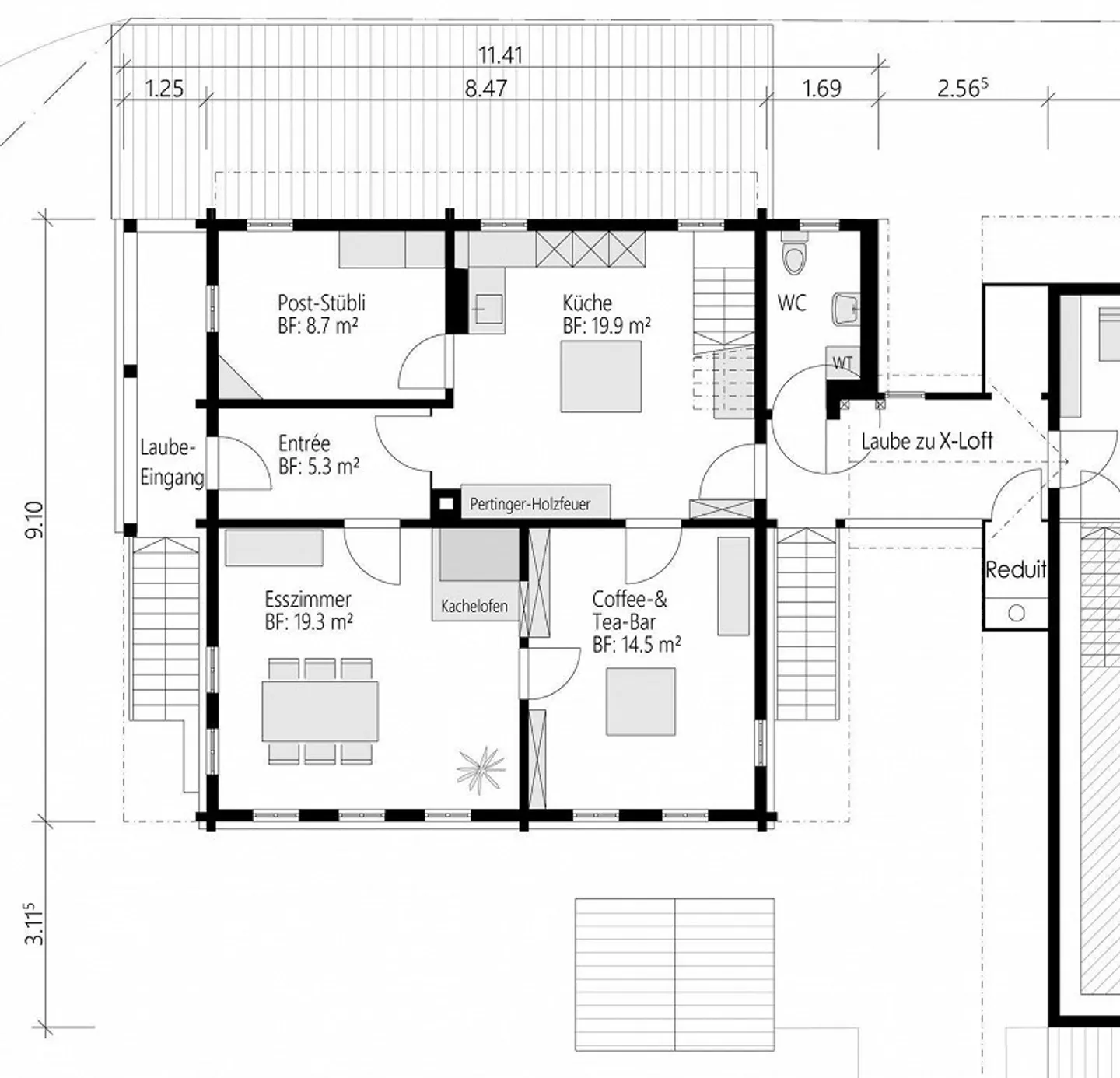
Propriété historique unique avec loft – bijou entièrement rénové
Pour les personnes ayant un sens du style, de l'histoire et de la qualité de vie.
Cette propriété extraordinaire est située à Ramersberg, un quartier calme de la commune de Sarnen dans le canton d'Obwald – au cœur de la Suisse. La propriété se compose de deux bâtiments protégés par des monuments : une charmante maison résidentielle datant de 1683 et une ancienne grange de 1820, qui est maintenant utilisée comme loft élégant. Les deux ont été entièrement rénovés en 2020 avec beaucoup de sensibilit...
Détails du bien
- Disponible à partir de
- Sur accord
- Pièces
- 8
- Année de rénovation
- 2020
- Surface du terrain
- 622 m²



