Maison individuelle à vendre - Pugerna 51, 6823 Pugerna
Pourquoi vous aimerez ce bien
Vue imprenable sur le lac
Environnement vert et tranquille
Idéal pour un projet duplex
Organiser une visite
Réserver une visite avec Boris aujourd'hui !
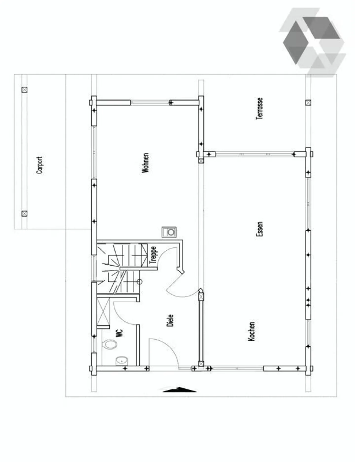
Nous avons calculé une maison compacte de Fullwood sur la propriété. La disposition, la taille et les artisans restent libres. Nous avons une maison modèle à Wolfhalden. Images en partie de la maison de bloc résidentiel Fullwood. La propriété est située directement à droite devant le restaurant Grütli au-dessus de la route. L'annonce comprend également l'adresse du restaurant, car la propriété n'en a pas encore. Pugema est une fraction de la commune d'Arogno et se trouve dans un endroit calme et...
Détails du bien
- Disponible à partir de
- Sur accord
- Pièces
- 4.5
- Année de construction
- 2025
- Surface du terrain
- 1944 m²




