Maison jumelle à vendre - Route De Mon Moulin 4a, 1906 Charrat
Pourquoi vous aimerez ce bien
Disposition spacieuse et familiale
Jardin privé pour se détendre
Vue imprenable sur les montagnes
Organiser une visite
Réserver une visite avec Mélanie aujourd'hui !
Magnifique villa de 4,5 pces - neuf
<b>PROJET NEUF - 5 villas de 4,5 pces
DERNIERE VILLA !!!</b>
Bienvenue dans votre futur foyer familial! Nichées dans le village de Charrat, au coeur de la commune animée de Martigny, ces cinq villas jumelées offrent un cadre de vie idyllique pour votre famille. Avec leur design moderne et leur espace extérieur verdoyant, ces résidences incarnent le mariage parfait entre confort contemporain et nature environnante.
Caractéristiques Principales:
Pourquoi Choisir Ces Villas:
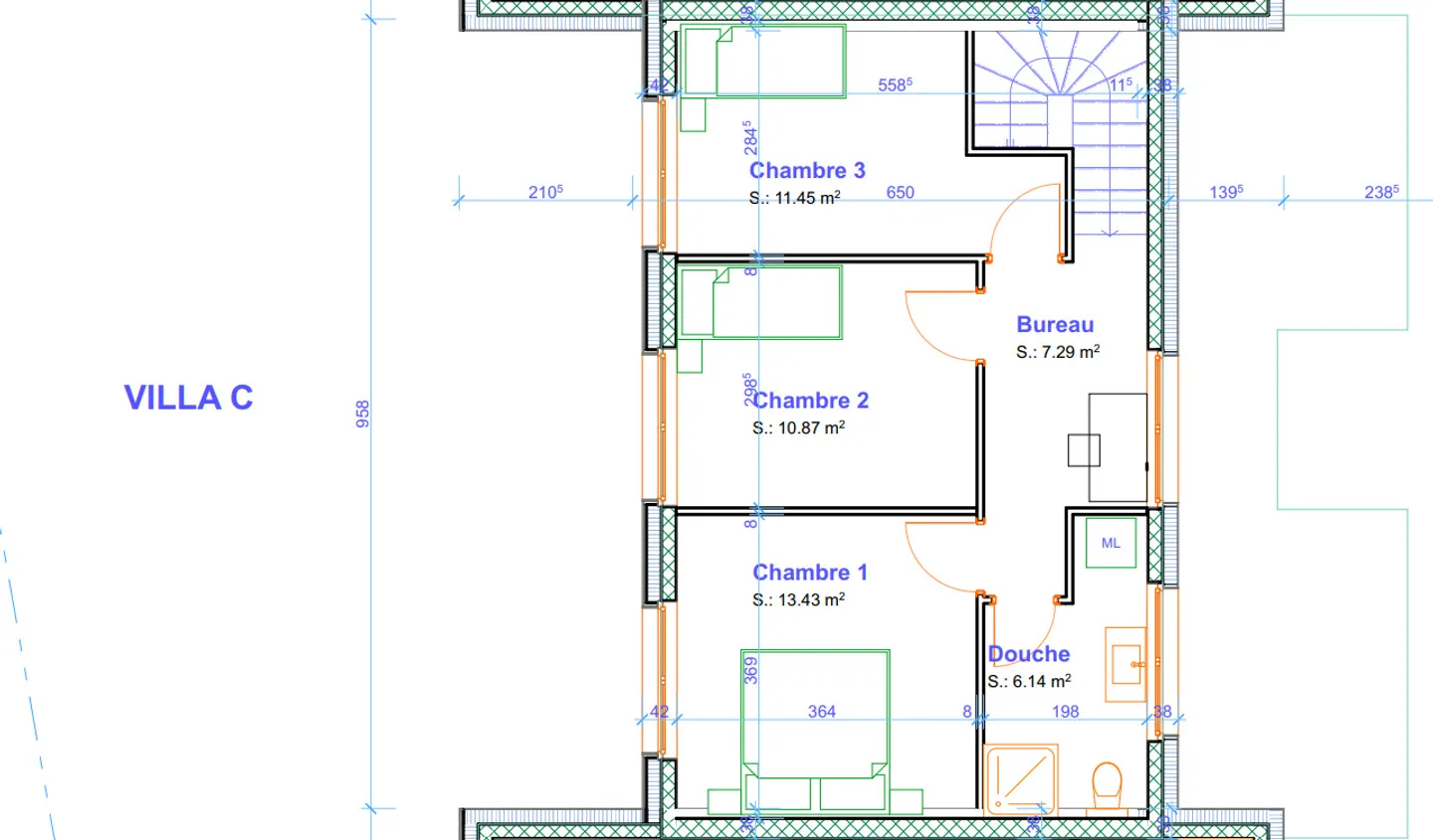
La villa C se distribue ains...
Détails du bien
- Disponible à partir de
- 11.11.2025
- Pièces
- 4.5
- Année de construction
- 2025
- Surface habitable
- 132 m²




