Ferme à vendre - Riebelberghöhe 443, 3436 Zollbrück
Pourquoi vous aimerez ce bien
Vues imprenables et tranquillité
Terrasse spacieuse pour se rassembler
Vie durable en harmonie avec la nature
Organiser une visite
Réserver une visite aujourd'hui !
Paradis dans l'emmental
Cherchez-vous un paradis au milieu du charmant paysage vallonné de l'Emmental? Aimez-vous les prairies vertes, les forêts, le calme et les vues dégagées – combinés avec un confort de vie moderne et un standard Minergie durable? Peut-être rêvez-vous aussi d'une source propre, d'un étang à poissons, d'arbres fruitiers, de poules, de moutons et d'une vie en harmonie avec la nature? Bienvenue au Riebelberg – ici commence votre paradis personnel! Concevez votre propriété selon vos idées – que ce soit...
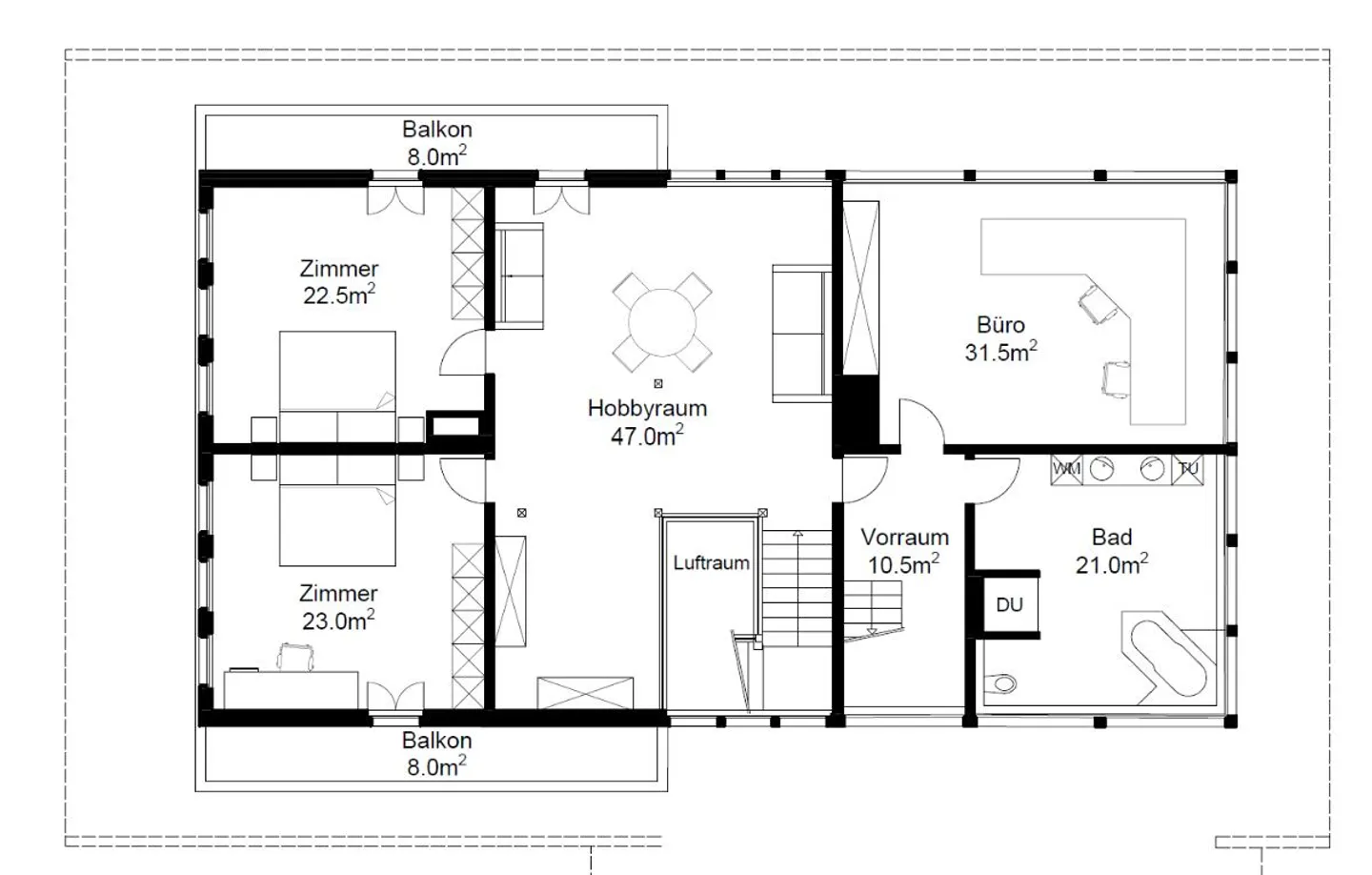
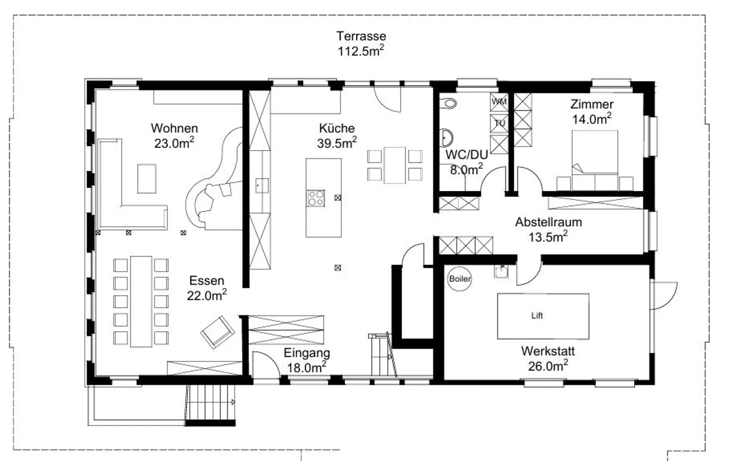
Détails du bien
- Disponible à partir de
- Sur accord
- Pièces
- 9
- Année de construction
- 2006
- Surface habitable
- 500 m²
- Surface du terrain
- 7411 m²



