Maison individuelle à vendre - Rue Du Nord 4, 1907 Saxon
Pourquoi vous aimerez ce bien
Espace de vie ouvert avec terrasse
Fenêtres triple vitrage
Bâtiment certifié MINERGIE
Organiser une visite
Réserver une visite aujourd'hui !
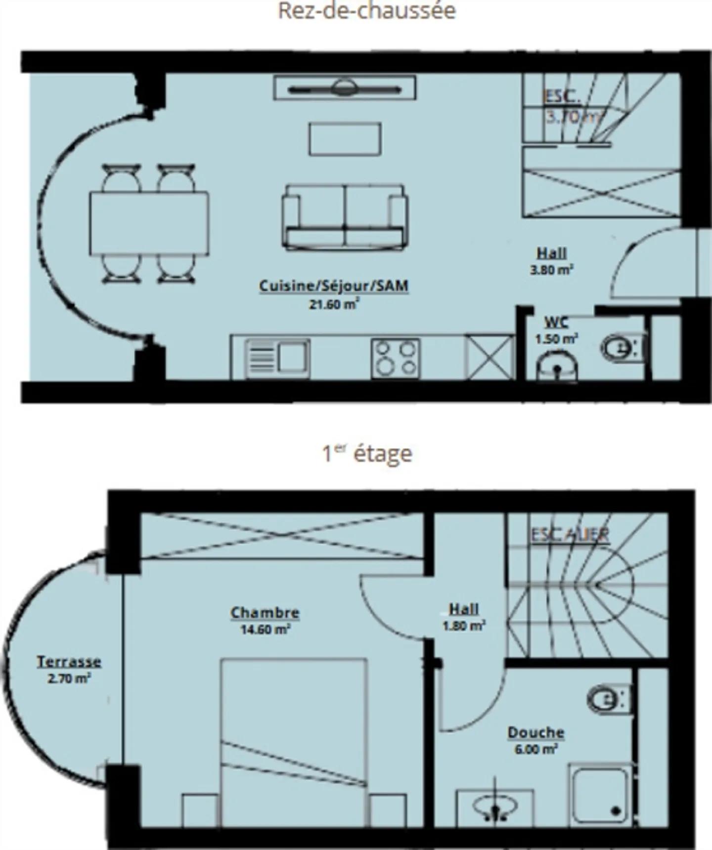
Appartement en maisonette de 2,5 pièces
2.5 Zimmer Maisonette-WohnungSaxon est une agréable ville située entre Sion et Martigny. La maison à vendre est située dans un quartier calme près de la gare de Saxon.Appartement en maisonette, il s'étend sur deux niveaux (rez-de-chaussée - 1er étage). Au rez-de-chaussée, il y a un hall d'entrée et un WC invités, puis un espace ouvert qui regroupe la cuisine, le salon et la salle à manger, tous donnant accès à la terrasse avec des fenêtres en saillie LUMICENE pour profiter pleinement du climat d...
Détails du bien
- Disponible à partir de
- Sur accord
- Pièces
- 2.5



