Maison individuelle à vendre - Bergstrasse 4, 8335 Hittnau
Pourquoi vous aimerez ce bien
Terrasse ensoleillée avec vue
Grenier spacieux à aménager
Charmant coin extérieur
Organiser une visite
Réserver une visite avec Dimmeler aujourd'hui !
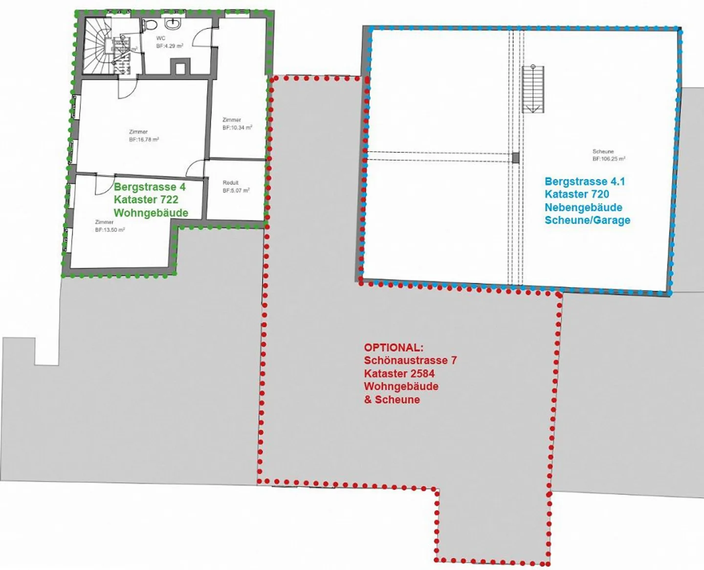
Maison historique flarzhaus intacte avec potentiel d'aménagement
HISTORIQUE FLARZHAUS avec potentiel d'aménagement à Hittnau-Isikon
La charmante maison de coin dans le style traditionnel Flarzhaus allie histoire et avenir. Avec ses 4,5 pièces sur environ 104 m² de surface habitable, une terrasse ensoleillée d'environ 15 m² et un coin salon extérieur confortable, elle offre un foyer particulier avec du caractère et beaucoup d'espace pour des rêves de vie personnels.
Points forts :
- 4,5 pièces avec environ 104 m² de surface habitable
- Terrasse ensoleillée avec be...
Détails du bien
- Disponible à partir de
- Sur accord
- Pièces
- 4.5
- Année de construction
- 1840
- Surface habitable
- 104 m²
- Surface du terrain
- 102 m²



