Maison jumelle à vendre - 3920 Zermatt
Pourquoi vous aimerez ce bien
Architecture alpine moderne
Terrasse et balcon spacieux
Système de chauffage économe
Organiser une visite
Réserver une visite avec Thomas aujourd'hui !
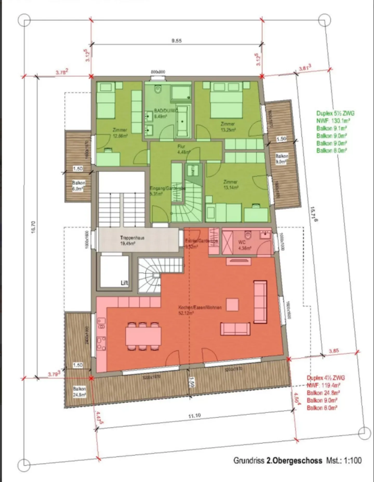
Appartement en duplex 4.5 au dernier étage avec vue sur le Cervin - Projet de nouvelle construction de première classe à Zermatt - Résidence principale
Moderne et durable
Dans le cadre pittoresque de Zermatt, une maison multifamiliale de haute qualité est en cours de construction, qui impressionne par son architecture moderne et l'utilisation d'éléments en bois de première classe. L'objectif est de créer une interaction harmonieuse entre le design contemporain et la construction alpine traditionnelle.
Architecture et design :
Le bâtiment prévu sera construit sur 4 étages et comprendra un total de quatre unités résidentielles :
- Trois appartements ...
Détails du bien
- Disponible à partir de
- 31.01.2026
- Pièces
- 4.5
- Salles de bain
- 2
- Année de construction
- 2025
- Surface habitable
- 120 m²
- Surface utilisable
- 167 m²



