Villa à vendre - Milieu Du Village 37, 2932 Coeuve
Pourquoi vous aimerez ce bien
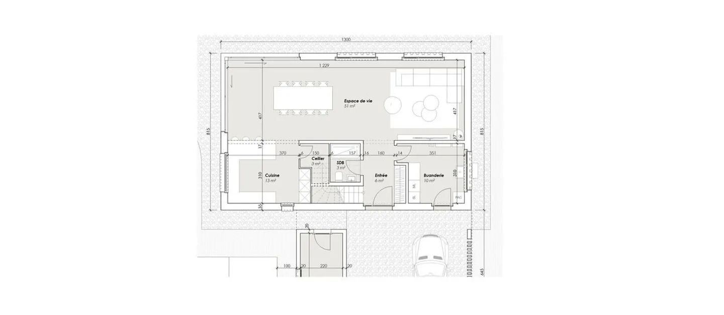
Espace de vie spacieux de 64 m²
Grande terrasse sud-est
Conception électrique saine
Organiser une visite
Réserver une visite avec Isabelle aujourd'hui !
Villa familiale de 5.5 pièces dans le village de Coeuve
RETROUVEZ TOUS NOS BIENS SUR NOTRE SITE INTERNET, WWW.NEU-IMMO.CH
Cette maison construite en ossature bois sera terminée en milieu d'année 2025 sur une parcelle de 691 m2.
Elle est située au centre du village et complètement orientée vers le sud.
La réalisation de l'enveloppe a été calculée afin d'obtenir la meilleures équation: qualité-prix-consommation d'énergie et le label énergétique P. La partie électrique est étudiée afin d'éviter au maximum les effets négatifs sur la santé.
Sur une surface ha...
Détails du bien
- Disponible à partir de
- Sur accord
- Pièces
- 5.5
- Année de construction
- 2024
- Surface habitable
- 171 m²
- Surface du terrain
- 691 m²
- Volume du bâtiment
- 850 m³




