Maison jumelle à vendre - Wedekindrain 3, 5600 Lenzburg
Pourquoi vous aimerez ce bien
Construction en bois durable
Jardins privés avec vue
Personnalisation flexible des acheteurs
Organiser une visite
Réserver une visite avec Werneyer aujourd'hui !
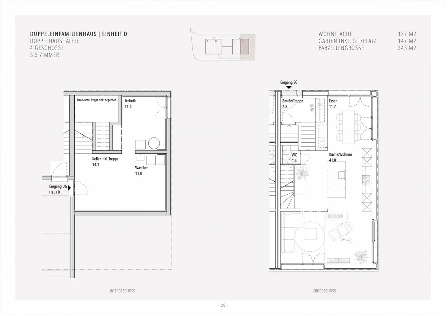
Nouvelle construction de deux maisons individuelles jumelées
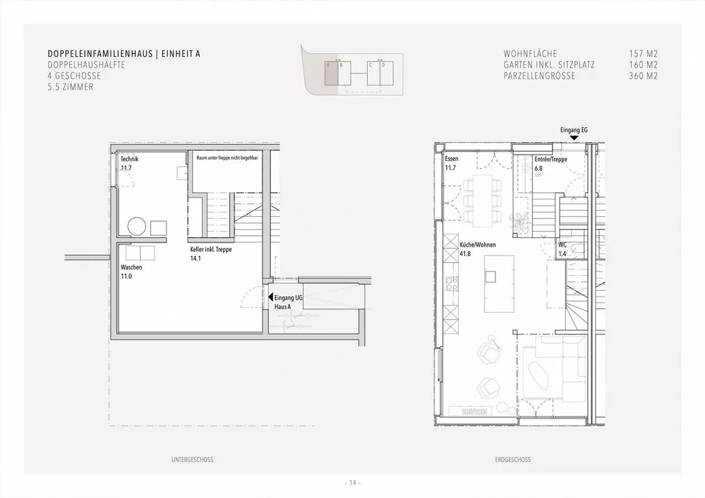
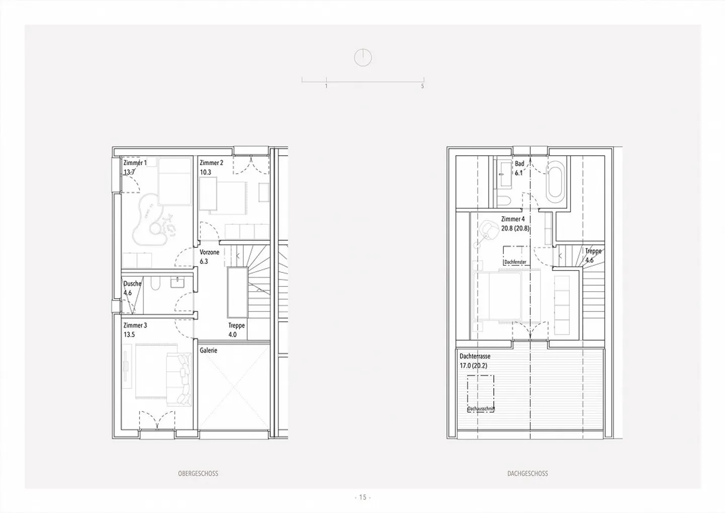
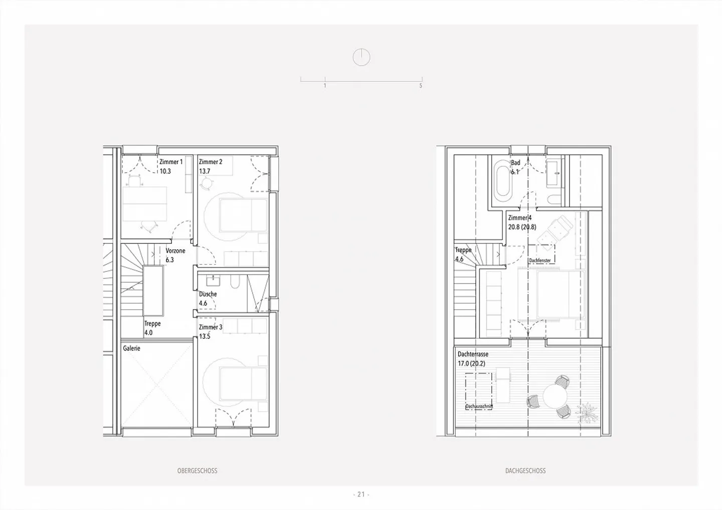
Nouvelle construction de deux maisons individuelles jumelées (2x 4.5 pièces et 2x 5.5 pièces)
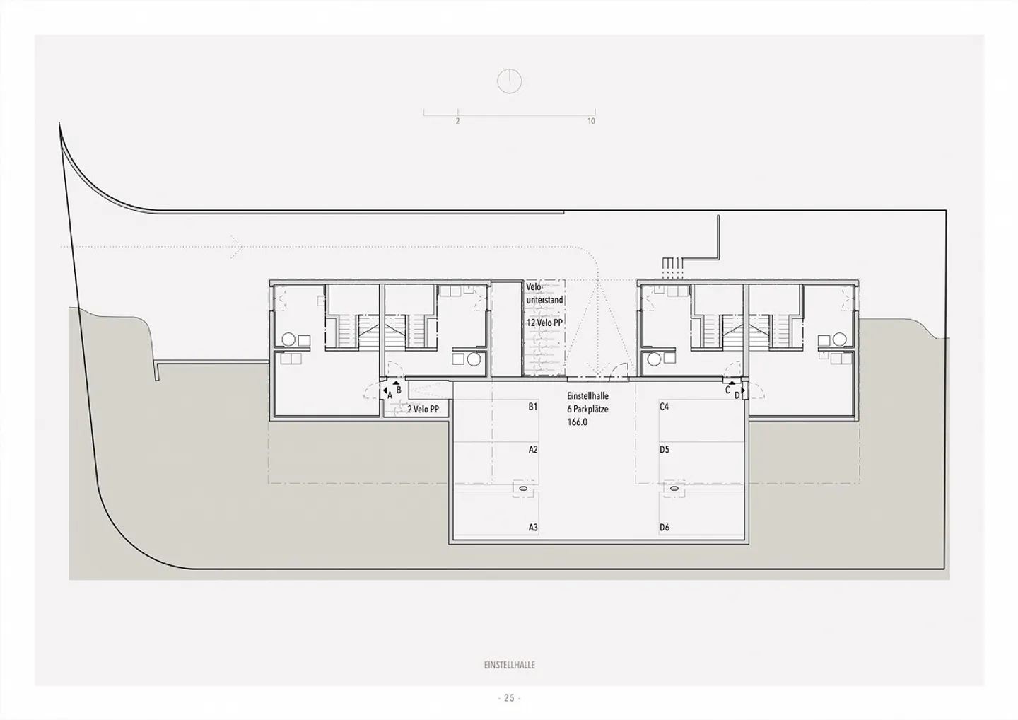
Toutes les unités avec accès direct au garage souterrain commun et jardin privé
Les demandes et les extensions des acheteurs individuels sont possibles
Construction durable en bois provenant d'un menuisier local avec pompe à chaleur à sonde géothermique
Concept architectural global de haute qualité
Prêt à emménager au printemps 2028
Unités clés en main incluant le terrain, les frais accessoires et les places ...
Détails du bien
- Disponible à partir de
- Sur accord
- Pièces
- 5.5
- Année de construction
- 2028
- Surface habitable
- 157 m²
- Surface du terrain
- 243 m²



