Maison individuelle à vendre - 2853 Courfaivre
Pourquoi vous aimerez ce bien
Intérieur personnalisable
Construction durable locale
Terrasse ensoleillée avec jardin
Organiser une visite
Réserver une visite aujourd'hui !
Maison 4.5 pièces
Maison individuelle de 4 1/2 pièces
Ce nouveau projet proposé par votre bureau technique régional, distinct par sa réalisation unique, allie confort moderne, efficacité énergétique, charme traditionnel et simplicité d'entretien, dans un cadre naturel et apaisant.
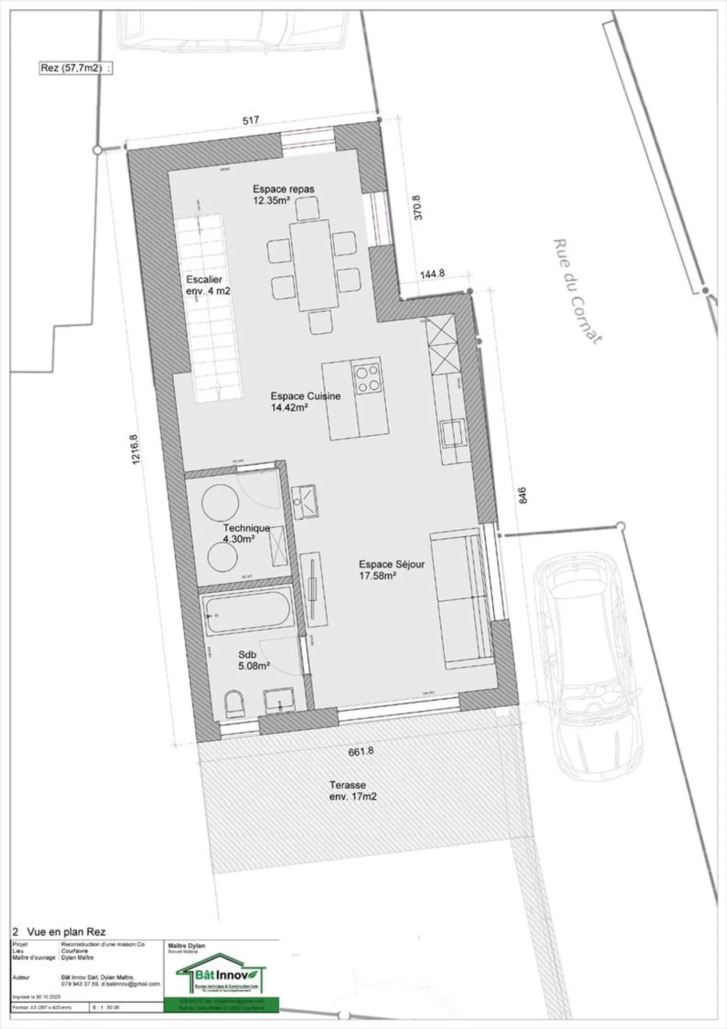
Située dans le village de Courfaivre, la maison bénéficie d'un bel ensoleillement et d'une vue dégagée sur les collines environnantes. Le terrain de 217 m² offre une surface parfaitement optimisée : deux places de parc, une belle terrasse...
Détails du bien
- Disponible à partir de
- Sur accord
- Pièces
- 4.5
- Surface habitable
- 124 m²



