Maison en terrasse à vendre - Mariahaldenstrasse 26, 8872 Weesen
Pourquoi vous aimerez ce bien
Vues panoramiques à couper le souffle
Espace de vie ouvert et élégant
Garage privé avec accès par ascenseur
Organiser une visite
Réserver une visite aujourd'hui !
Vous allez tomber amoureux...
Vous allez tomber amoureux...
À Mariahaldenstrasse 26 à Weesen, nous vendons une maison de terrasse exclusive avec une vue sans pareille. Weesen est situé de manière idyllique au pied du lac Walensee et offre une variété d'opportunités de loisirs tant en été qu'en hiver.
Nichée dans la montagne, la construction de Mariahaldenstrasse se dresse majestueusement. Vous pouvez garer votre véhicule confortablement dans votre propre garage. Avec l'ascenseur, vous pouvez ensuite accéder à votre nouveau c...
Détails du bien
- Disponible à partir de
- Sur accord
- Pièces
- 3.5
- Année de construction
- 1984
- Année de rénovation
- 2024
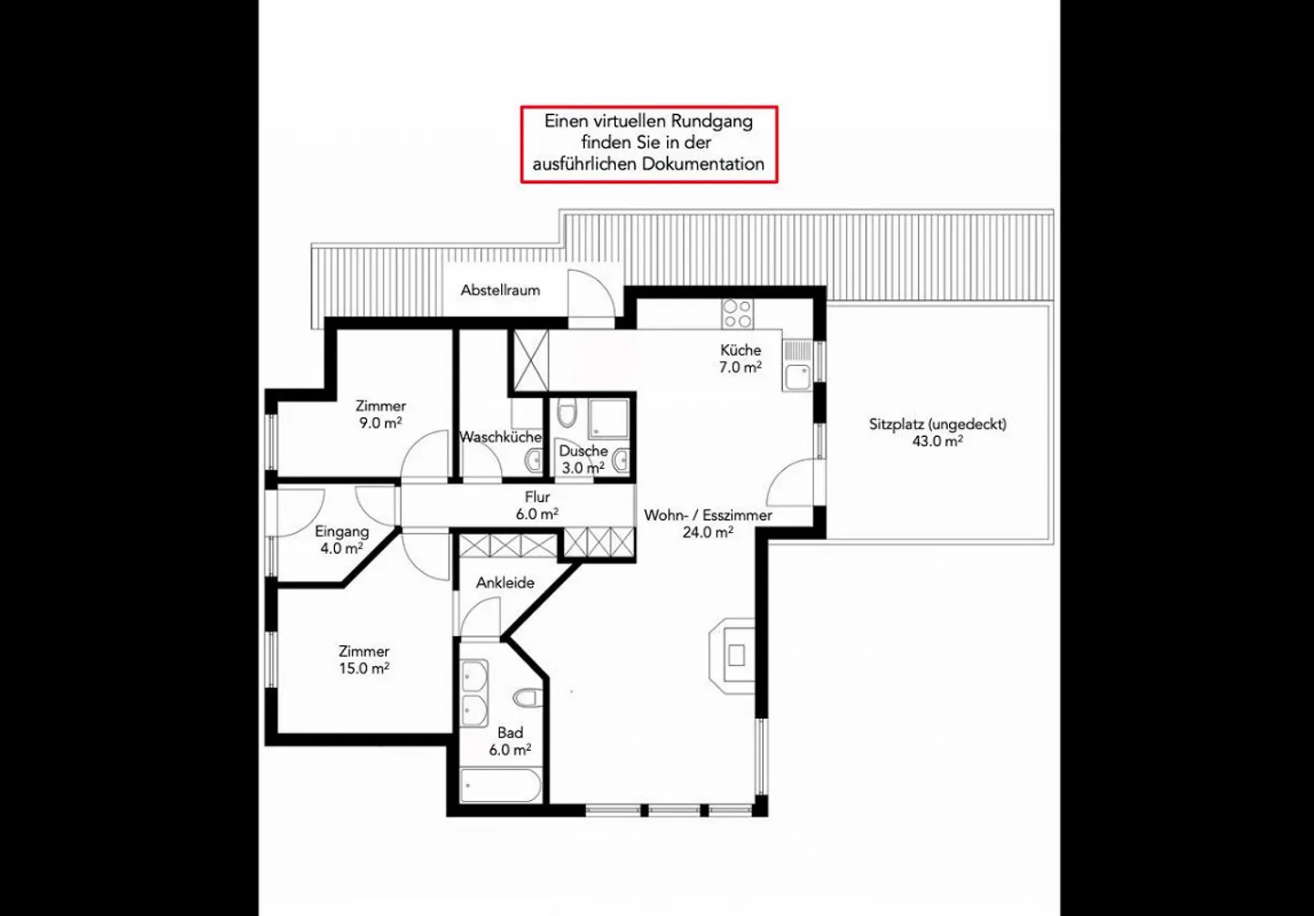
- Surface habitable
- 74 m²
- Surface du terrain
- 202 m²



