Chalet à vendre - 2350 Saignelégier
Pourquoi vous aimerez ce bien
Construction en madrier
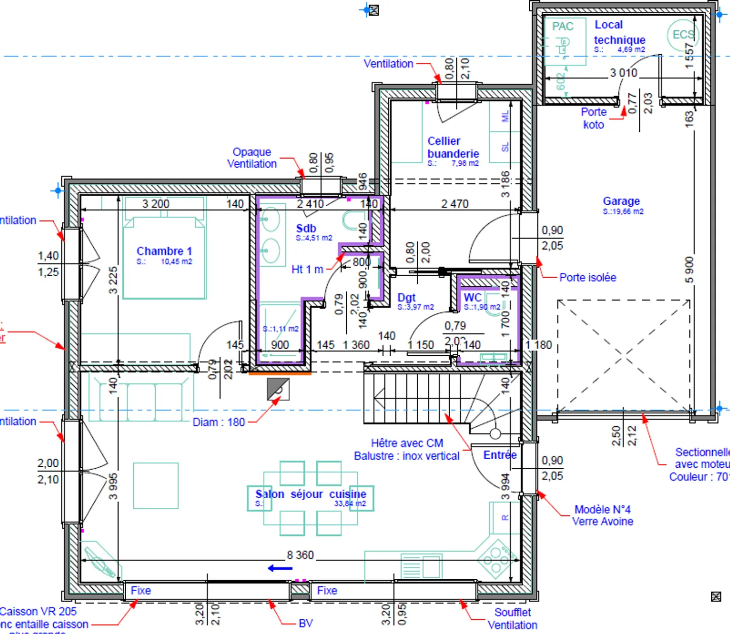
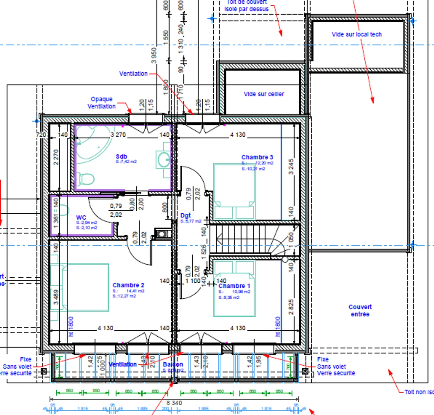
Plans intérieurs adaptables
Panneaux photovoltaïques
Organiser une visite
Réserver une visite avec Béatrice aujourd'hui !
Maison moderne en madrier thermo-chauffé, avec garage, terrasse et jardin
A vendre dès 2026 à Saignelégier, près de toutes les commodités, une maison familiale moderne en madrier massif thermo-chauffé avec panneaux photovoltaïques.
5.5 pces (122m2 surface plancher) avec deux salles de bain et WC séparé. Garage et terrasse. Chauffage avec pompe à chaleur.
Parcelle 545m2.
La demande de permis est en cours, mais les plans intérieurs peuvent être adaptés aux désirs de l'acheteur.
Possibilité de visiter une maison déjà construite dans les Franches-Montagnes.
Voir par ce lien le...
Détails du bien
- Disponible à partir de
- Sur accord
- Pièces
- 5.5
- Année de construction
- 2026
- Surface habitable
- 122 m²
- Surface du terrain
- 545 m²




