Villa à vendre - Impasse Dixence 21, 1955 St-Pierre-de-Clages
Pourquoi vous aimerez ce bien
Intérieur personnalisable
Jardin privé et terrasse ensoleillée
Salon spacieux avec accès extérieur
Organiser une visite
Réserver une visite avec Roderick aujourd'hui !
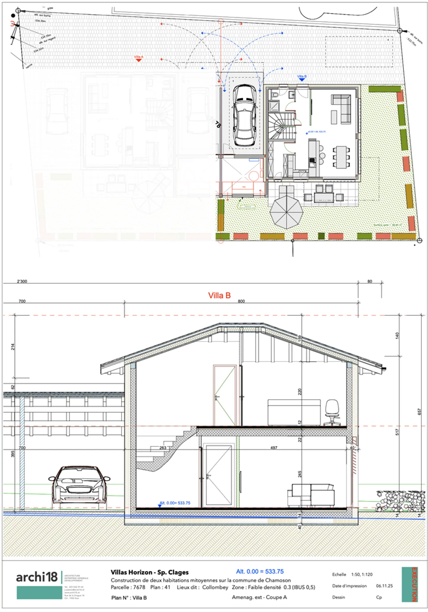
Villa familiale avec 4,5 pièces près de la zone de construction
Villa située à la lisière de la zone de construction offrant tranquillité et vue unique sur le paysage.
Découvrez cette villa jumelée de 4,5 pièces, idéalement située au cœur du charmant village de St-Pierre-de-Clages (Chamoson).
✨ Points forts du projet :
* Exécution 100 % personnalisée : créez un intérieur qui vous correspond
* Jardin privé + terrasse ensoleillée 🌿
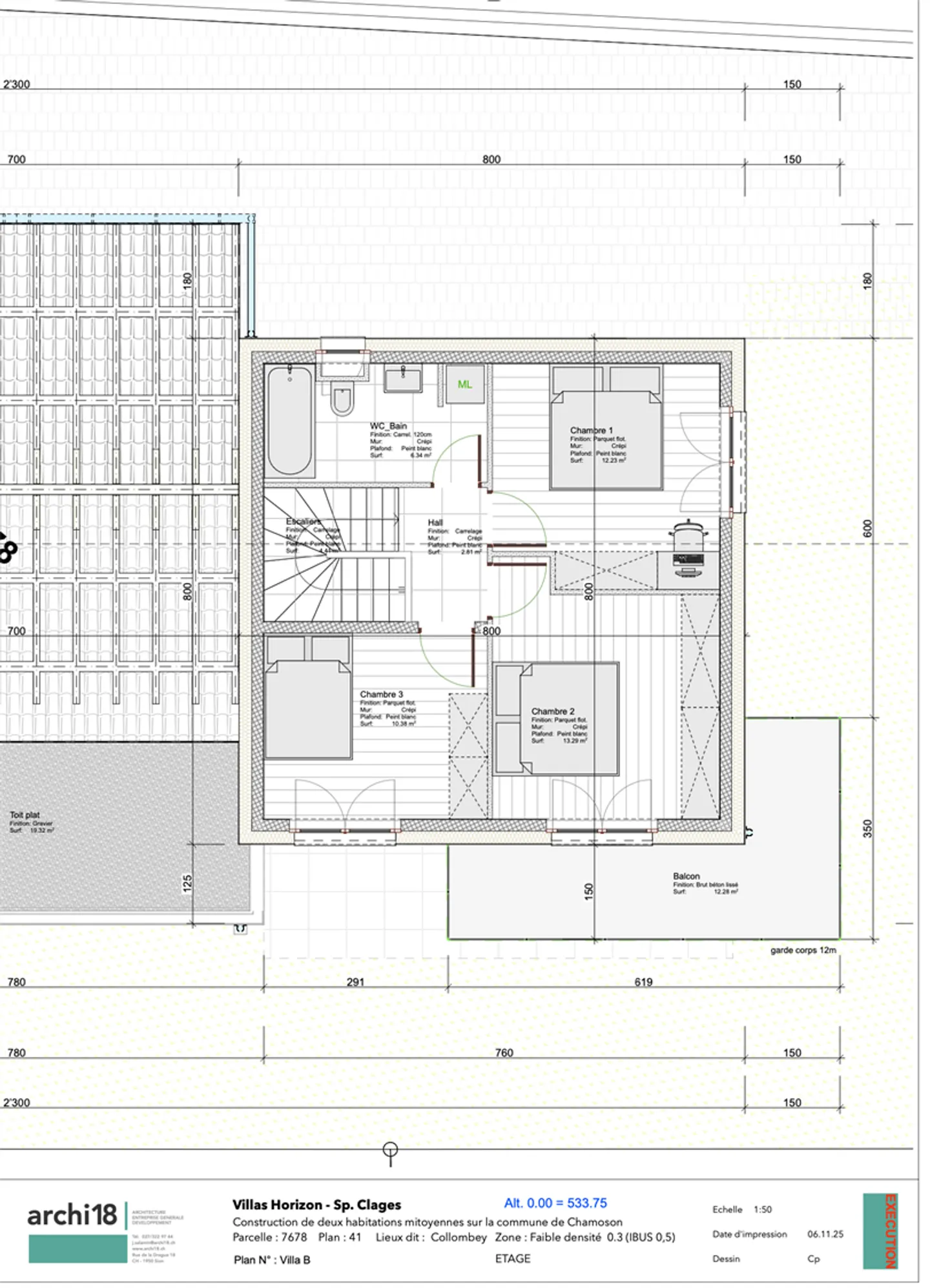
* 3 chambres, dont une suite parentale avec salle de bain
* Grand salon avec cuisine ouverte et accès direct à l'extérieur
* 2 places de...
Détails du bien
- Disponible à partir de
- Sur accord
- Pièces
- 4.5
- Surface habitable
- 128 m²



