Maison individuelle à vendre - Impasse Dixence 21, 1955 St-Pierre-de-Clages
Pourquoi vous aimerez ce bien
Finitions intérieures personnalisables
Terrasse ensoleillée et jardin
Séjour spacieux avec accès
Organiser une visite
Réserver une visite avec roderick aujourd'hui !
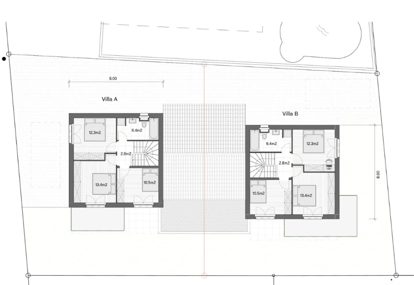
Maison 4.5 pièces
Villa familiale de 4,5 pièces en limite de zone à bâtir
Terrain situé en limite de zone constructible, offrant un cadre de vie paisible et une ouverture dégagée sur le paysage environnant.
Découvrez ce projet de deux villas jumelées de 4.5 pièces, dont l'une est implantée en limite de parcelle, idéalement situées en bordure du village de St-Pierre-de-Clages (Chamoson).
Un emplacement privilégié, au calme, tout en restant proche des principaux axes de communication.
Points forts du projet :
* Finitio...
Détails du bien
- Disponible à partir de
- Sur accord
- Pièces
- 4.5
- Salles de bain
- 2



