Maison individuelle à vendre - Landstrasse 20, 8362 Balterswil
Pourquoi vous aimerez ce bien
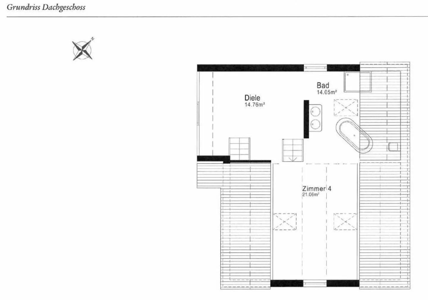
Entrée spacieuse avec rangement
Nouveau système de chauffage
Carport inclus dans le prix
Organiser une visite
Réserver une visite aujourd'hui !
À vendre maison individuelle de 5½ pièces à itaslen près de balterswil !
À vendre maison individuelle
Grand hall d'entrée avec placards intégrés. Nouveaux sols en vinyle. WC séparé, machine à laver et sèche-linge.
Cuisine-salon. Nouvelle baignoire et WC douche.
Système de chauffage plus récent avec pompe à chaleur air-eau, installé en 2021.
Carport en projet et inclus dans le prix.
Prix clé en main : Fr. 780'000.-
Téléphone et visites du LUN au SAM, de 7h00 à 20h00.
, nous sommes heureux de vous aider !
Des rendez-vous de visite ou une visite au bureau sont possibles à court...
Détails du bien
- Disponible à partir de
- Sur accord
- Pièces
- 5.5



