Maison jumelle à vendre - 1964 Conthey
Pourquoi vous aimerez ce bien
Conception spacieuse familiale
Espaces de vie lumineux
Zone résidentielle calme
Organiser une visite
Réserver une visite avec Mélanie aujourd'hui !
Villa 5,5 pièces à Conthey
Villas jumelées de 5.5 pièces à Conthey
Situé sur la commune prisée de Conthey, au coeur du Valais central, ce nouveau projet immobilier propose 4 villas jumelées contemporaines conçues pour offrir confort, espace et qualité de vie dans un environnement privilégié. Entre vignobles, montagnes et plaine du Rhône, Conthey séduit par son cadre naturel et sa situation idéale à quelques minutes seulement de Sion et des principaux axes de communication.
Ces villas modernes et lumineuses ont été pensées p...
Détails du bien
- Disponible à partir de
- 31.03.2026
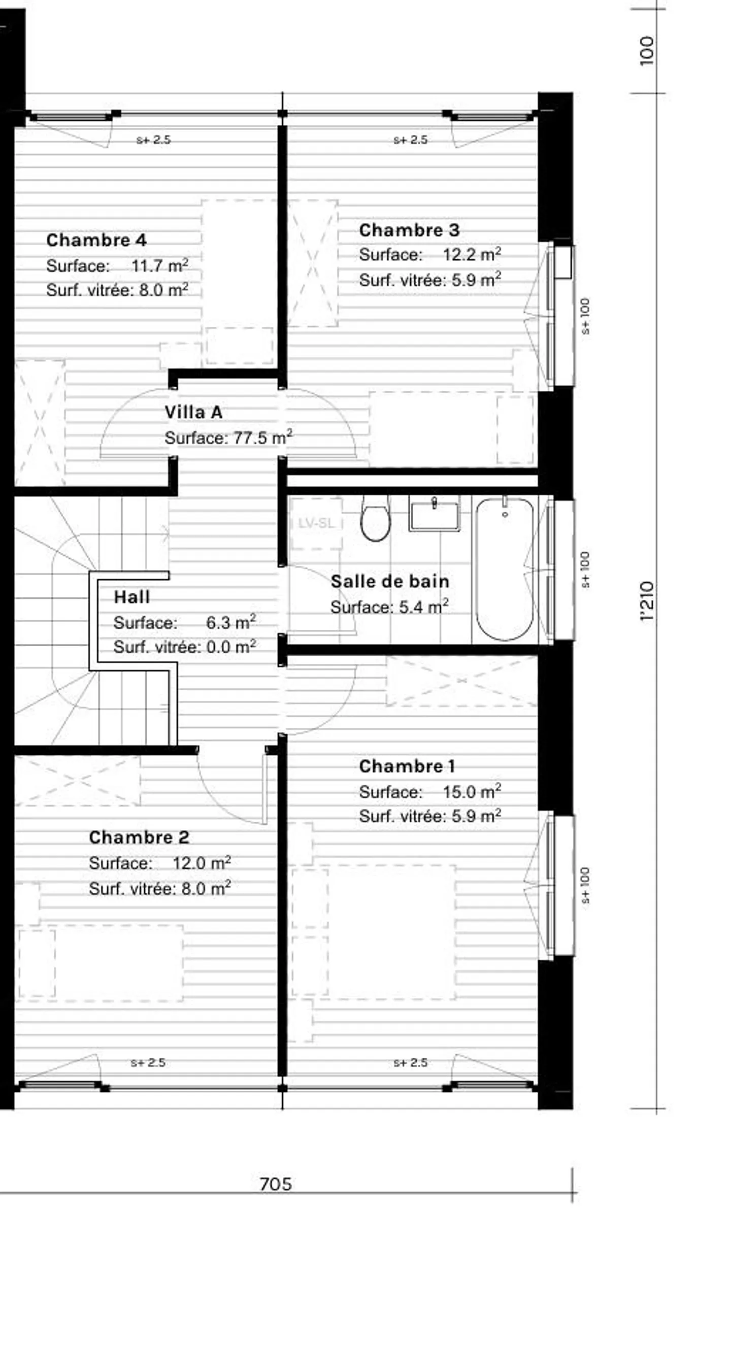
- Pièces
- 5.5
- Année de construction
- 2026
- Surface habitable
- 145 m²




