Maison en terrasse à vendre - 1868 Collombey
Pourquoi vous aimerez ce bien
Espace jardin privé
Matériaux de haute qualité
Conception écoénergétique
Organiser une visite
Réserver une visite avec Yves aujourd'hui !
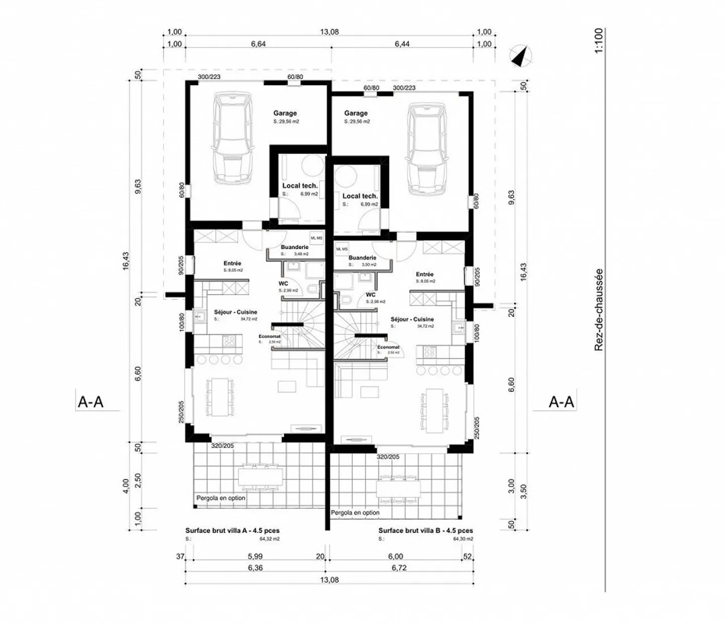
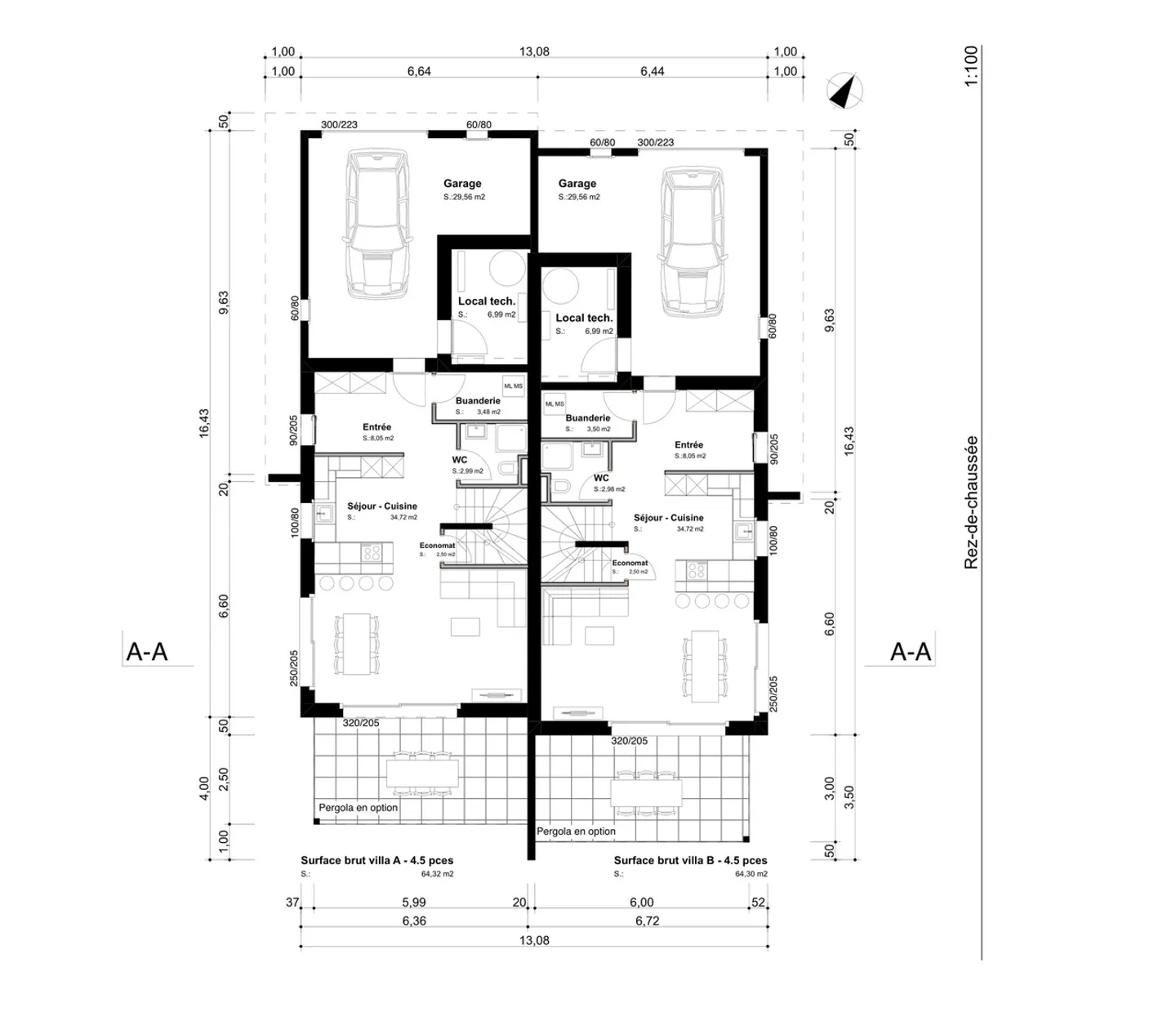
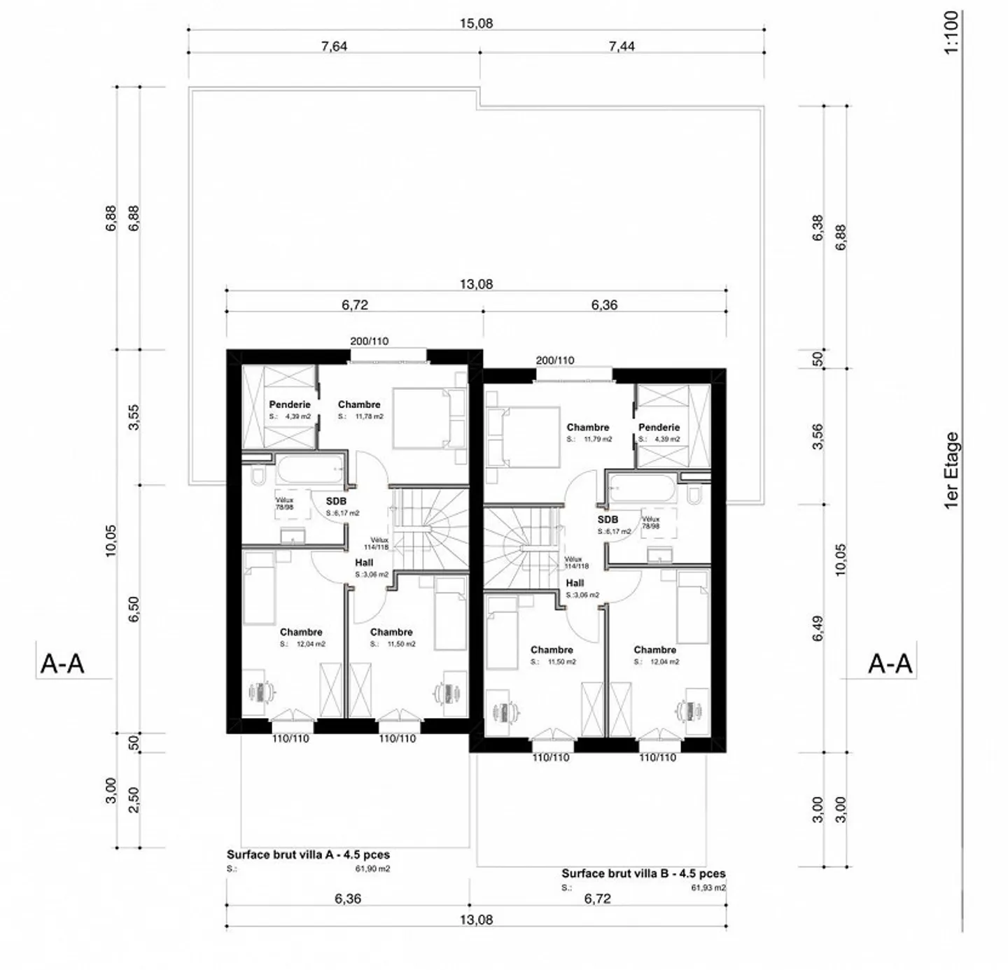
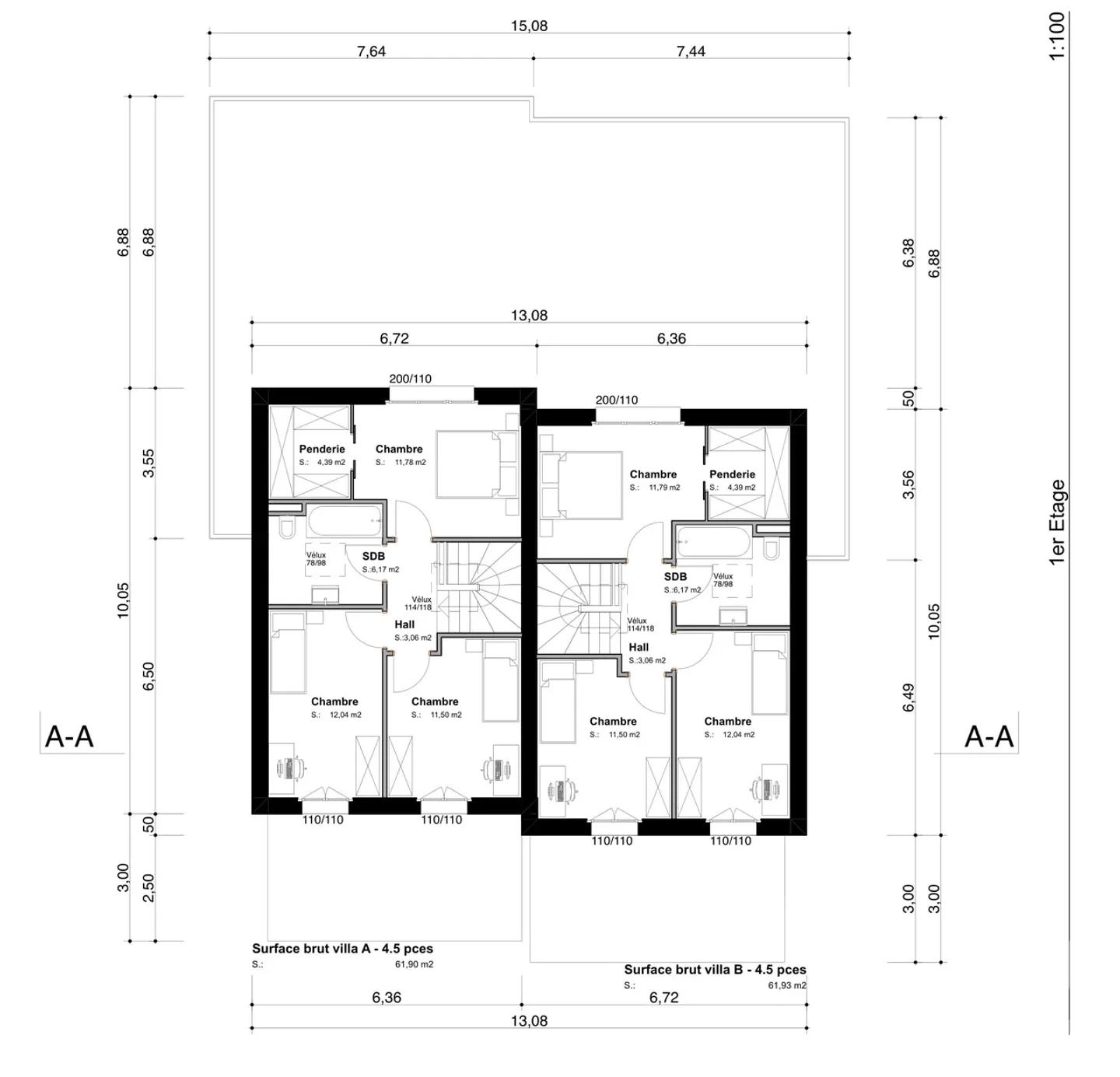
Collombey, nouveau projet d'une villa de 4.5 pièces
Valimmobilier SA a le plaisir de vous présenter un nouveau projet de 4 appartements modernes à Collombey.
Dans un quartier sympathique de Collombey, vous pouvez devenir propriétaire de cette villa contemporaine de 4.5 pièces, construite avec 131 m2, garage et jardin privé. Le quartier est proche de toutes les activités et se trouve à moins de 5 minutes de la sortie d'autoroute de St-Triphon. Cette maison de ville a été construite par des promoteurs locaux. En construction traditionnelle, elle es...
Détails du bien
- Disponible à partir de
- Sur accord
- Pièces
- 4.5
- Année de construction
- 2026
- Surface habitable
- 131 m²
- Surface du terrain
- 407 m²
- Volume du bâtiment
- 547 m³



