Maison en terrasse à vendre - Chemin De Remontet 18, 1536 Combremont-le-Petit
Pourquoi vous aimerez ce bien
Terrain exclusif de 425 m2
Intérieurs personnalisables
Vues paisibles sur la campagne
Organiser une visite
Réserver une visite avec Synergimmo aujourd'hui !
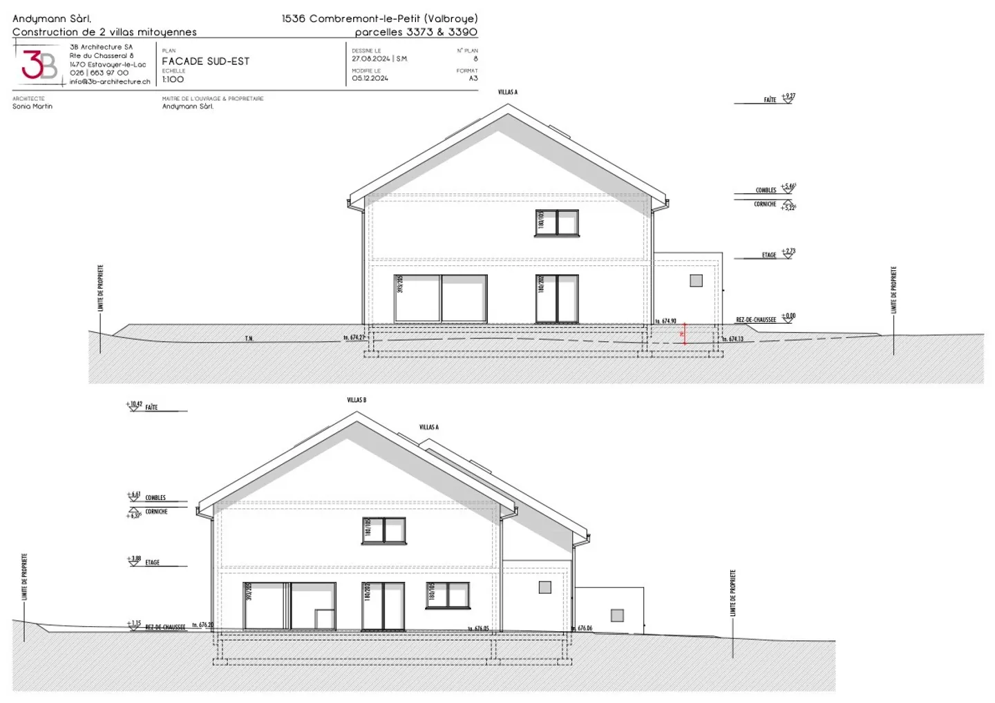
Villa neuve sur plan dans un espace verdoyant
Villa d'architecte mitoyenne de 4,5 ou 5,5 pièces avec un terrain exclusif de 425 m2 à Combremont-le-Petit.
LES ATOUTS EN UN COUP D'OEIL
- Villa d'architecte
- Construction traditionnelle
- Intérieurs sur mesure
- Cadre champêtre et nature
- Vue dégagée
- 32m2 habitables supplémentaires en option...
SITUATION
Le charmant village de Combremont du district de la Broye est situé dans le canton de Fribourg avec une proximité immédiate d'Estavayer-le-Lac et Payerne :
</li></ul>
LA VILLA
Le modèle présenté (villa A) offre ...
Détails du bien
- Disponible à partir de
- Sur accord
- Pièces
- 5.5
- Année de construction
- 2025
- Surface habitable
- 132 m²
- Surface utilisable
- 215 m²
- Surface du terrain
- 442 m²




