Maison individuelle à vendre - 1470 Estavayer-le-Lac
Pourquoi vous aimerez ce bien
Conception moderne avec panneaux solaires
Vaste pièce de vie avec terrasse
Emplacement calme près de l'autoroute
Organiser une visite
Réserver une visite aujourd'hui !
Villa de 5.5 pièces haute performance énergétique avec jardin
Située dans le canton de Fribourg, Lieu dit "La Vounaise", à 8 minutes de l'accès à l'autoroute, cette villa récente bénéficie d'un environnement particulièrement calme.
De conception moderne, elle est conçue selon les normes Haute Performance Energétique avec pompe à chaleur air/eau et panneaux solaires pour la production d'eau chaude.
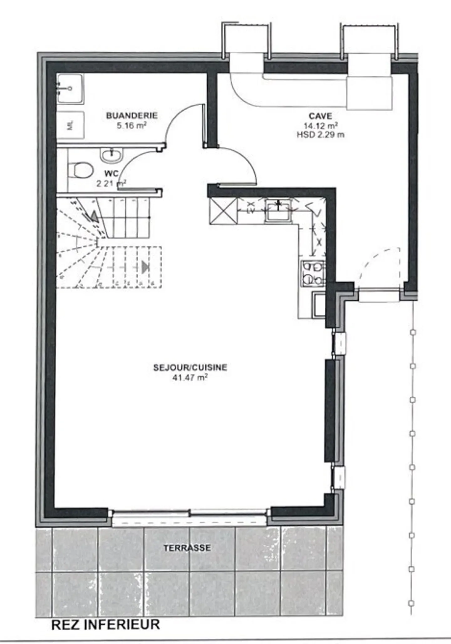
Particulièrement lumineuse, elle est composée d'une vaste pièce de vie ouverte sur la terrasse, de 4 chambres spacieuses dont une avec dressing, deux salles d'ea...
Détails du bien
- Disponible à partir de
- Sur accord
- Pièces
- 5.5
- Année de construction
- 2019
- Surface habitable
- 140 m²
- Surface du terrain
- 245 m²



