Maison individuelle à vendre - Chemin Du Trot 14, 3979 Grône
Pourquoi vous aimerez ce bien
Beaux espaces verts
Potentiel de rénovation
Vue sur quartier calme
Organiser une visite
Réserver une visite avec Mireille aujourd'hui !
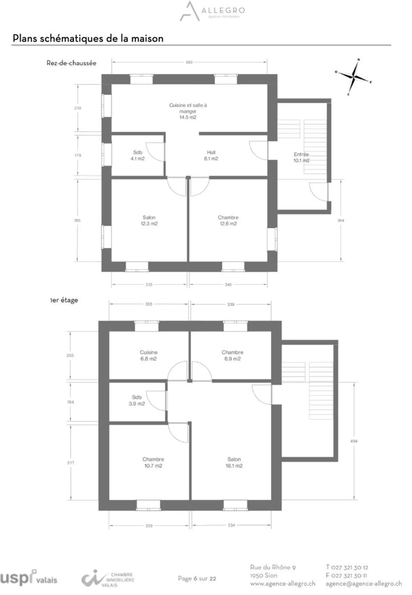
Pramagnon, maison familiale avec 230m2, pelouse et places de parking extérieures
Cette charmante maison familiale, composée de deux appartements, a été construite dans les années 1930 au Chemin du Trot 14 à Pramagnon, dans le village de Grône.
La maison offre une belle vue car elle est située en bordure d'une zone de construction et dans un quartier très agréable et calme.
La maison, composée de deux appartements, a été entièrement rénovée dans les années 1970 et a bénéficié d'une seconde rénovation dans les années 2000 au rez-de-chaussée (cuisine, fenêtres, sols, etc.). Grâce...
Détails du bien
- Disponible à partir de
- Sur accord
- Pièces
- 5.5
- Surface habitable
- 230 m²
- Surface du terrain
- 640 m²
- Volume du bâtiment
- 590 m³



