Maison individuelle à vendre - 1291 Commugny
Pourquoi vous aimerez ce bien
Séjour spacieux de 90 m²
Suite parentale de 40 m²
Quartier calme et familial
Organiser une visite
Réserver une visite aujourd'hui !
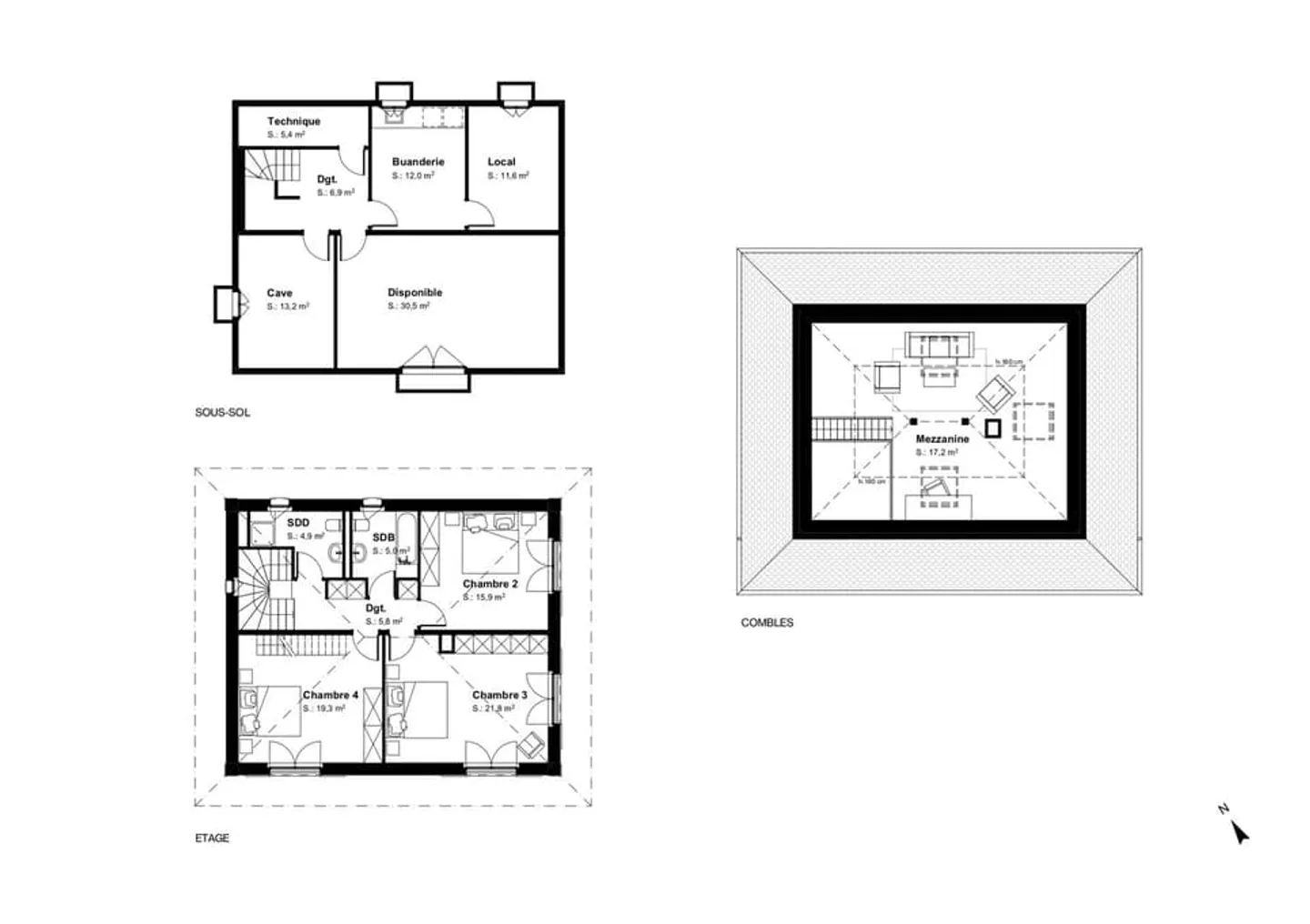
Villa de 7.5 pièces à Commugny avec projet de rénovation et d'extension
Villa individuelle avec un projet d'extension et de rénovation d'une villa existante, préavisée favorablement par les autorités, est située au sein de la commune de Commugny, dans un quartier paisible et recherché, au bout d'un chemin sans issues.
Le projet comprend une rénovation complète de la villa avec l'ajout d'un bureau au rez-de-chaussée ainsi que d'une vaste suite parentale de 40 m2.
L'extension, quant à elle, profite d'un séjour avec cuisine de 90 m2 et d'une terrasse couverte de plus d...
Détails du bien
- Disponible à partir de
- Sur accord
- Pièces
- 7.5
- Année de construction
- 2002
- Année de rénovation
- 2026
- Surface habitable
- 305 m²
- Surface du terrain
- 1473 m²




