Maison individuelle à vendre - 1237 Avully
Pourquoi vous aimerez ce bien
Design économe en énergie
Intérieurs personnalisables
Environnement verdoyant paisible
Organiser une visite
Réserver une visite aujourd'hui !
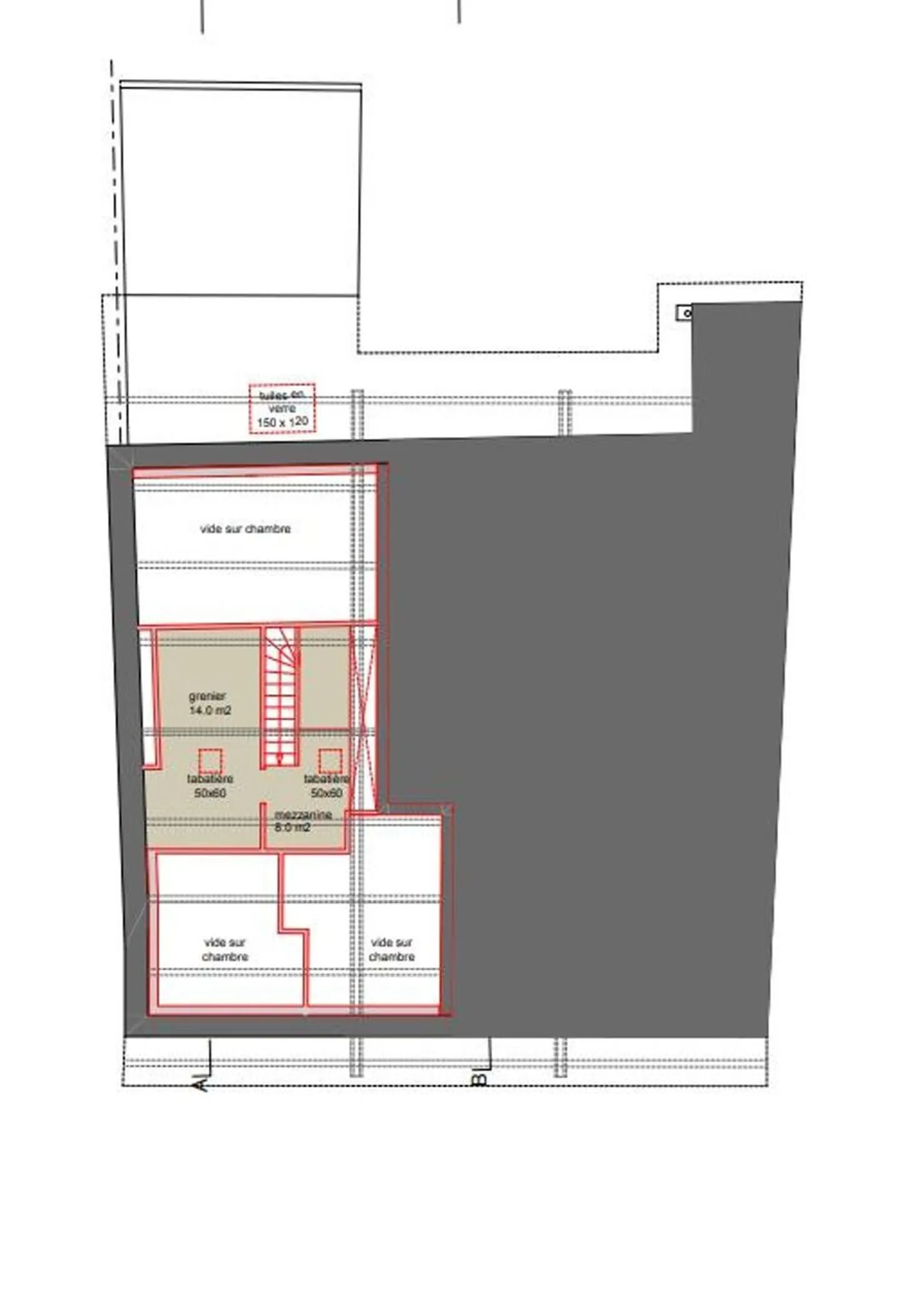
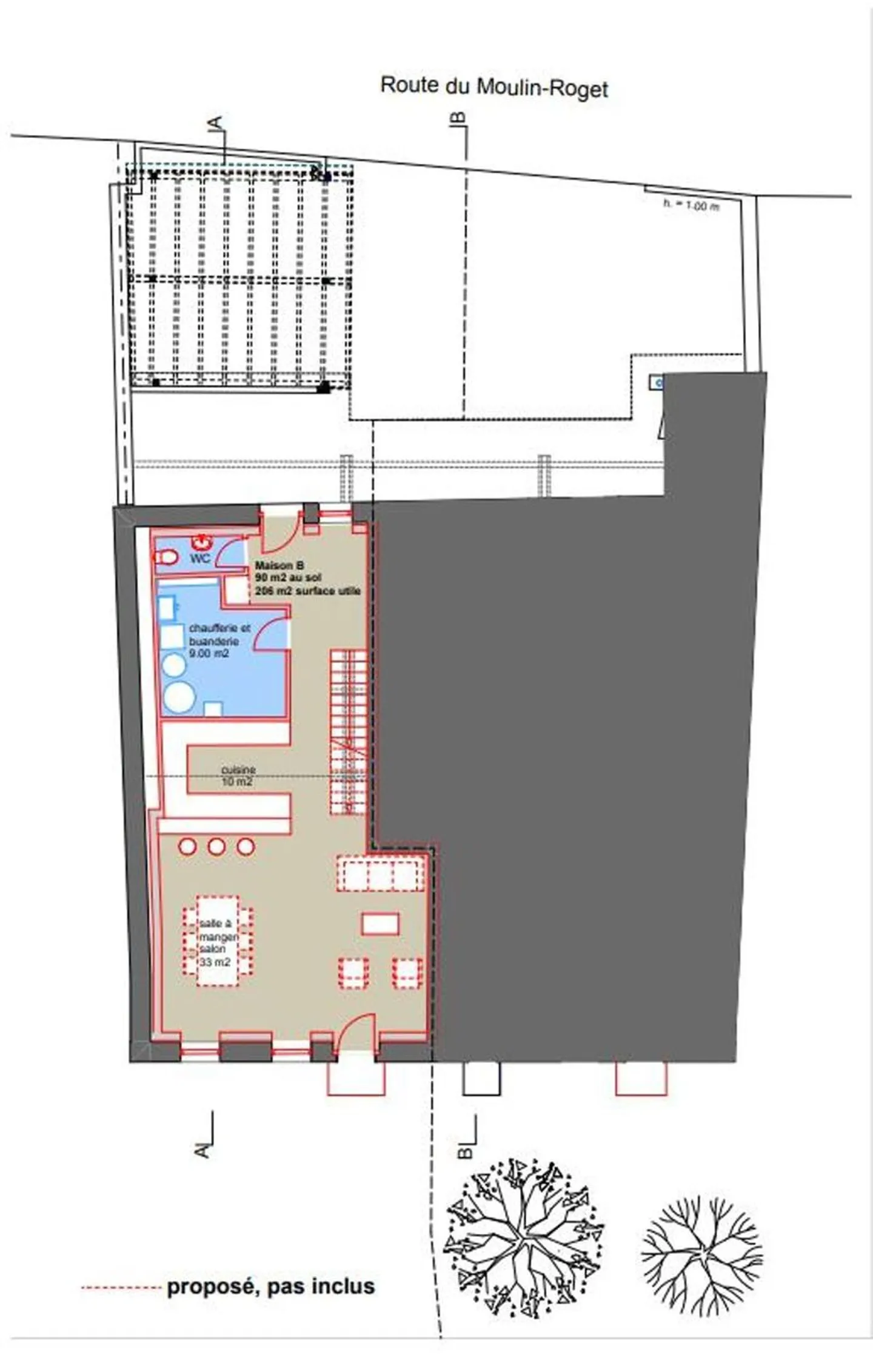
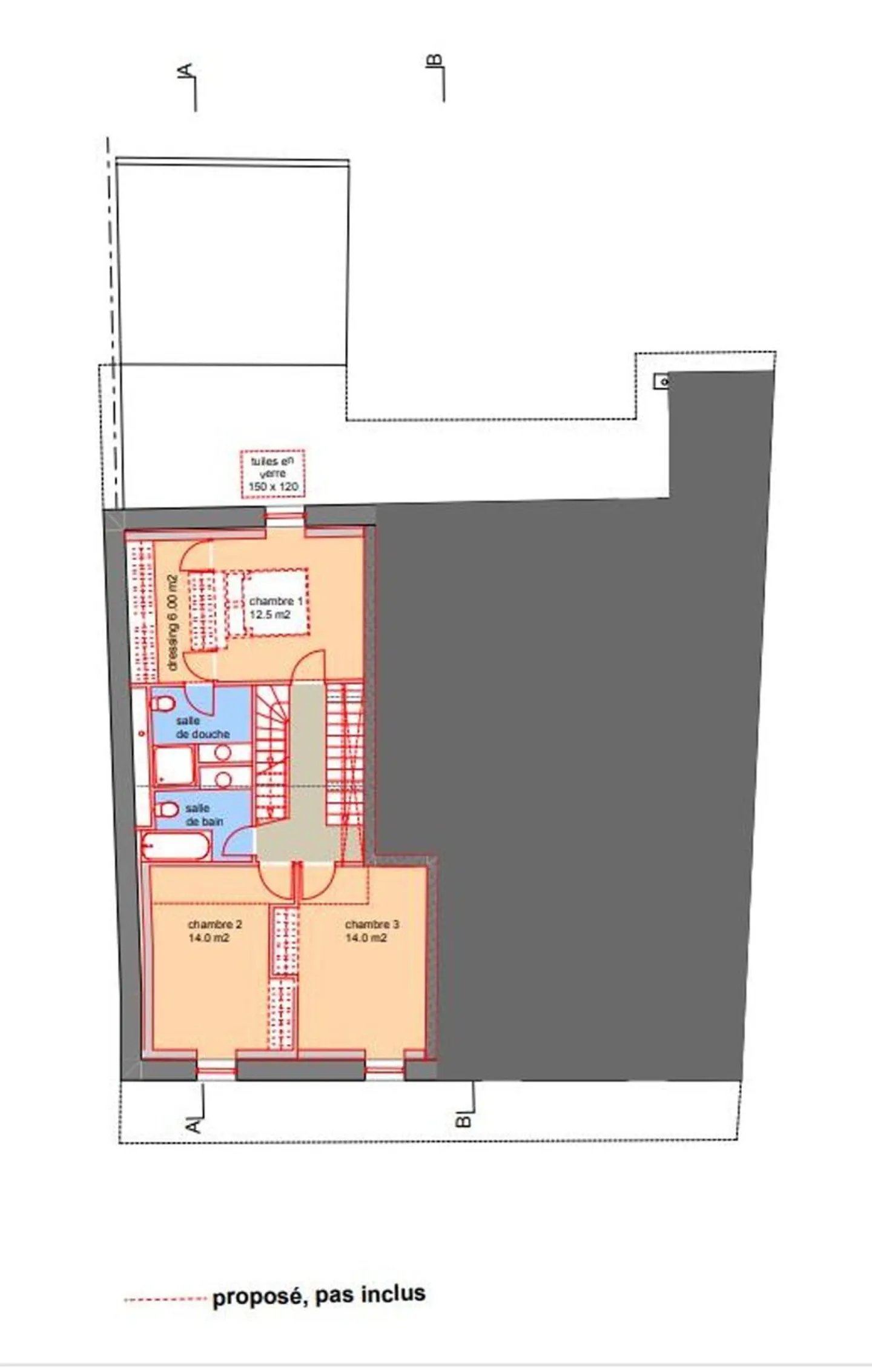
La Grange de Moulin Roget - Promotion de 2 villas contigües - Lot B
Située au coeur du village d'Avully, cette nouvelle promotion, présentée en collaboration avec Friedli Consulting, est le fruit de la rénovation d'une ancienne grange. Elle se composera de deux maisons contigües sur deux niveaux avec combles, conformes aux normes HPE (Haute Performance Énergétique), à vendre sur plans.
Mariant l'authenticité de l'ancien avec des touches modernes, ce projet saura vous séduire par son cadre paisible et verdoyant.
Édifiée sur une parcelle de 465 m2, la villa B offri...
Détails du bien
- Disponible à partir de
- Sur accord
- Pièces
- 6
- Année de construction
- 2026
- Surface habitable
- 206 m²
- Surface du terrain
- 465 m²



