1 / 20

Maison individuelle à louer - Route De La Tourne 1, 2019 Rochefort

1650 m² • 3142 m² Plot
CHF 1’350’000.-
CHF 818 m²

Pourquoi vous aimerez ce bien

Projet de rénovation approuvé

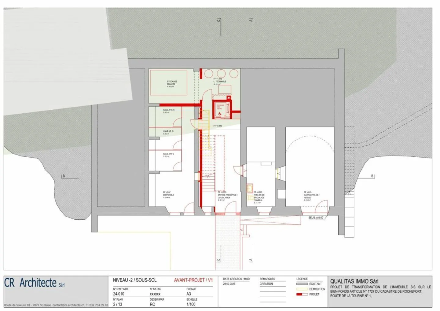
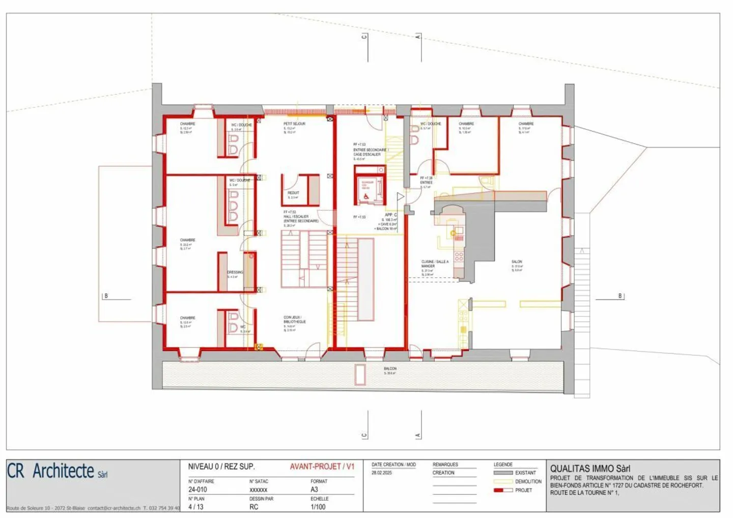
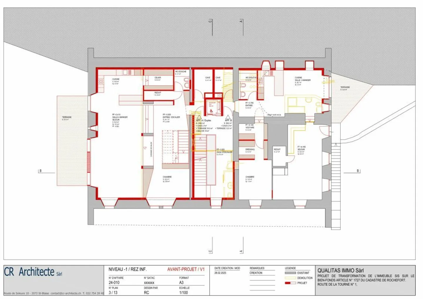
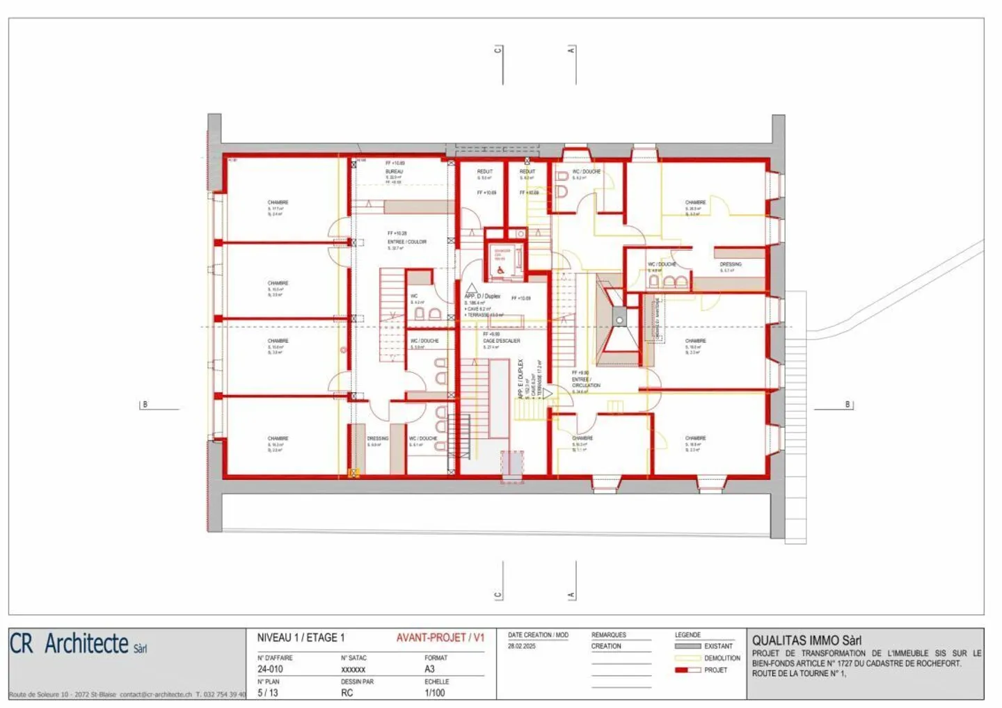
Appartements spacieux prévus

Verger charmant inclus

Organiser une visite

Réserver une visite avec Loric aujourd'hui !

Loric Wolf
Wolf Output SA

Magnifique projet de rénovation, bâtisse de caractère

À VENDRE : Bâtisse de caractère à rénover avec projet approuvé pour 5 appartements - Rochefort (NE)Vous êtes à la recherche d'un bien d'exception, chargé d'histoire, avec un fort potentiel de valorisation ? Cette splendide bâtisse de caractère à rénover, située au coeur du charmant village de Rochefort dans le canton de Neuchâtel, est faite pour vous !Bénéficiant d'un permis de construire (en cours), ce projet vous permettra de réaliser 5 appartements spacieux et lumineux, dans un cadre paisible...

Détails du bien

Disponible à partir de
16.04.2025
Surface habitable
1650
Surface du terrain
3142
Surface du balcon
36

Caractéristiques

Balcon
Parking
Vue dégagée
Ascenseur
Cheminée
TV par câble
Machine à laver
Adapté aux fauteuils roulants
Adapté aux enfants

Agence

Wolf Output SA
Wolf Output SA
Adresse:Rte de Lausanne 10, 1400, Yverdon-les-Bains
Ref: a372f4db-481c-11f0-9d93-069ae14c7a06

Localisation

Route De La Tourne 1, 2019 Rochefort