Immeuble mixte à vendre - Hauptstrasse 92, 9436 Balgach
Pourquoi vous aimerez ce bien
Terrasse sur le toit avec piscine
Espace de vie ouvert avec loggia
Emplacement de choix très visible
Organiser une visite
Réserver une visite aujourd'hui !
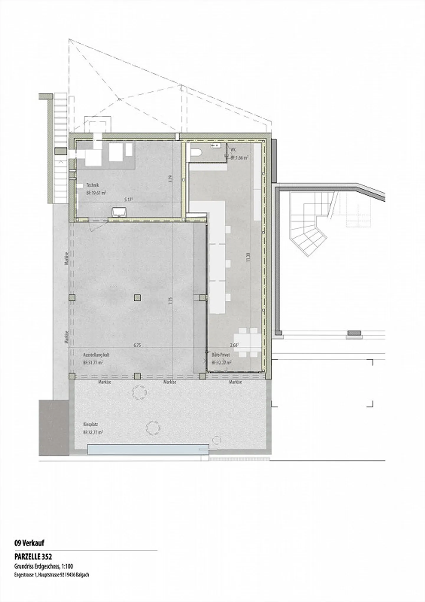
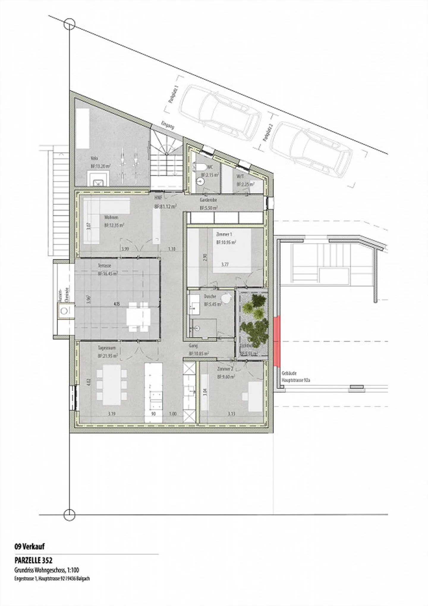
Propriété commerciale et résidentielle avec terrasse sur le toit unique
Ce bâtiment résidentiel et commercial unique est situé sur une route principale très fréquentée entre Altstätten et Heerbrugg, ce qui garantit un excellent impact publicitaire pour les entreprises. Le bâtiment commercial a été construit en 1997 et complété par un nouveau bâtiment séparé en 2021.
Détails :
- Bâtiment commercial avec deux étages : 119 m²
- Surface d'exposition extérieure : 51 m² (expansion préparée)
- Espace bureau : 32 m²
- Appartement 3.5 pièces : 81 m²
- Terrasse sur le toit avec pis...
Détails du bien
- Disponible à partir de
- Sur accord
- Année de construction
- 1997
- Année de rénovation
- 2021
- Surface du terrain
- 545 m²



