Immeuble résidentiel à vendre - 8499 Sternenberg
Pourquoi vous aimerez ce bien
Emplacement idyllique avec piscine
Atelier d'art et salles de séminaire
Terrasse spacieuse pour rassemblements
Organiser une visite
Réserver une visite avec Christian aujourd'hui !
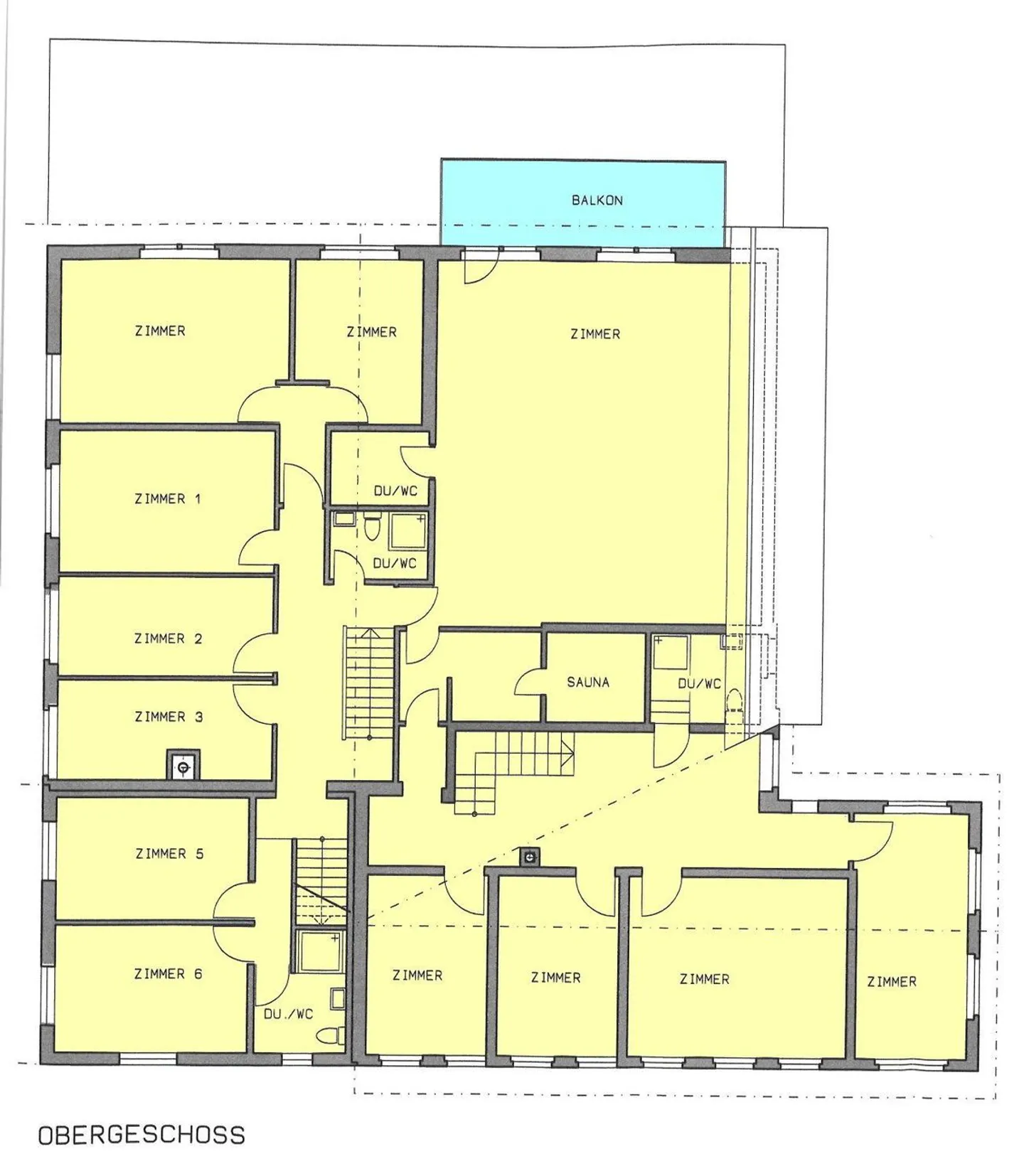
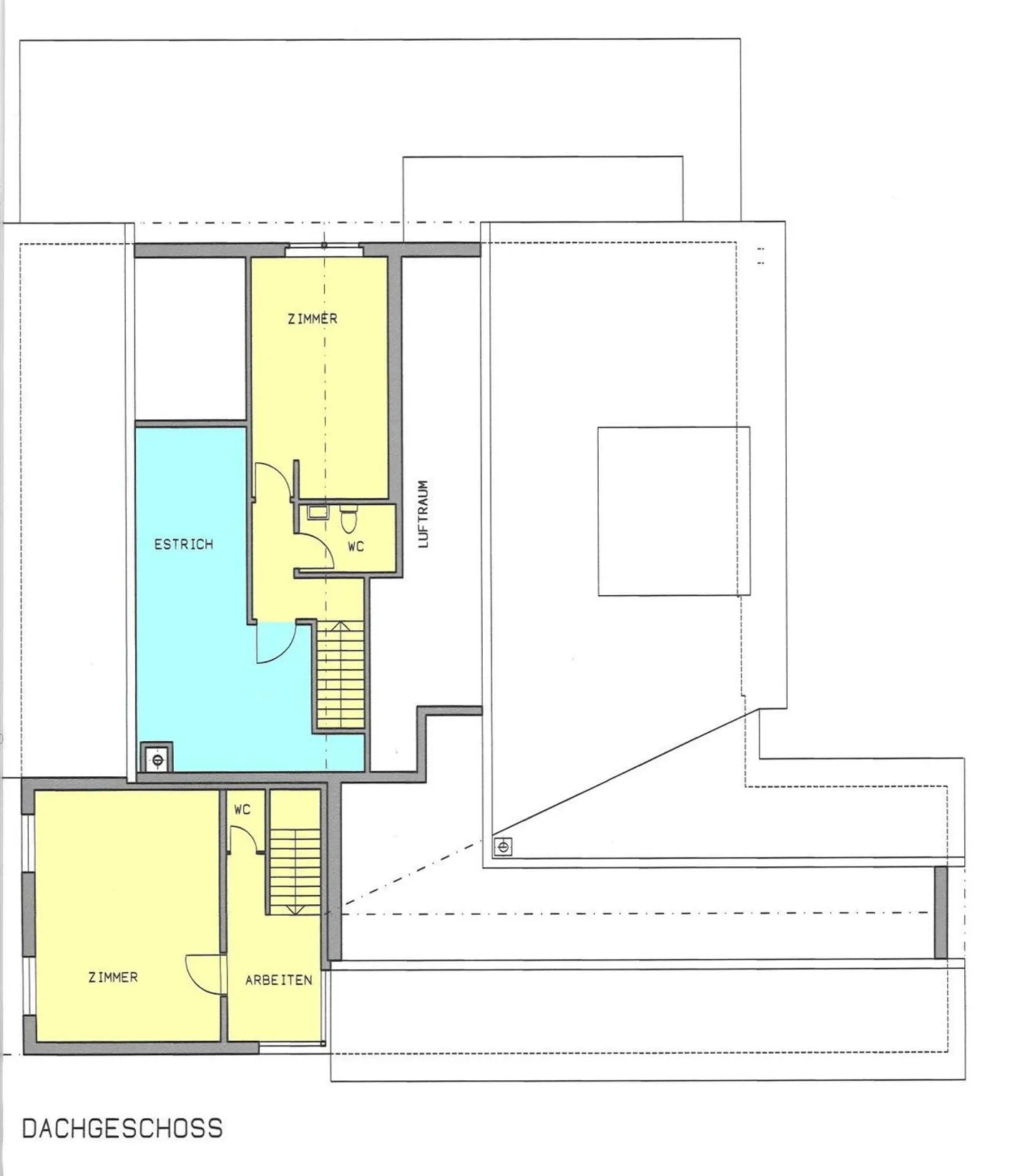
Maison multigénérationnelle et séminaire dans un endroit idyllique !
Dans la partie nord de Sternenberg, commune de Bauma, dans un endroit extrêmement idyllique, calme et ensoleillé, se trouve la maison résidentielle et de groupe "Alter Steinshof" avec un total de 14 chambres et 3 salles de séminaire, un atelier d'art, ainsi qu'une piscine et un sauna. Le bâtiment principal, construit à l'origine en 1865, avec un restaurant et un appartement au-dessus, a été considérablement agrandi dans les années 1970 et en 1998. Aujourd'hui, environ 170 m² sont disponibles dan...
Détails du bien
- Disponible à partir de
- Sur accord
- Pièces
- 14
- Année de construction
- 1865
- Année de rénovation
- 2017
- Surface du terrain
- 1373 m²




