Immeuble résidentiel à vendre - Seeblickstrasse 2, 8280 Kreuzlingen
Pourquoi vous aimerez ce bien
Vue imprenable sur le lac
Accès exclusif au jardin
Normes d'efficacité énergétique élevées
Organiser une visite
Réserver une visite avec Elmaz aujourd'hui !
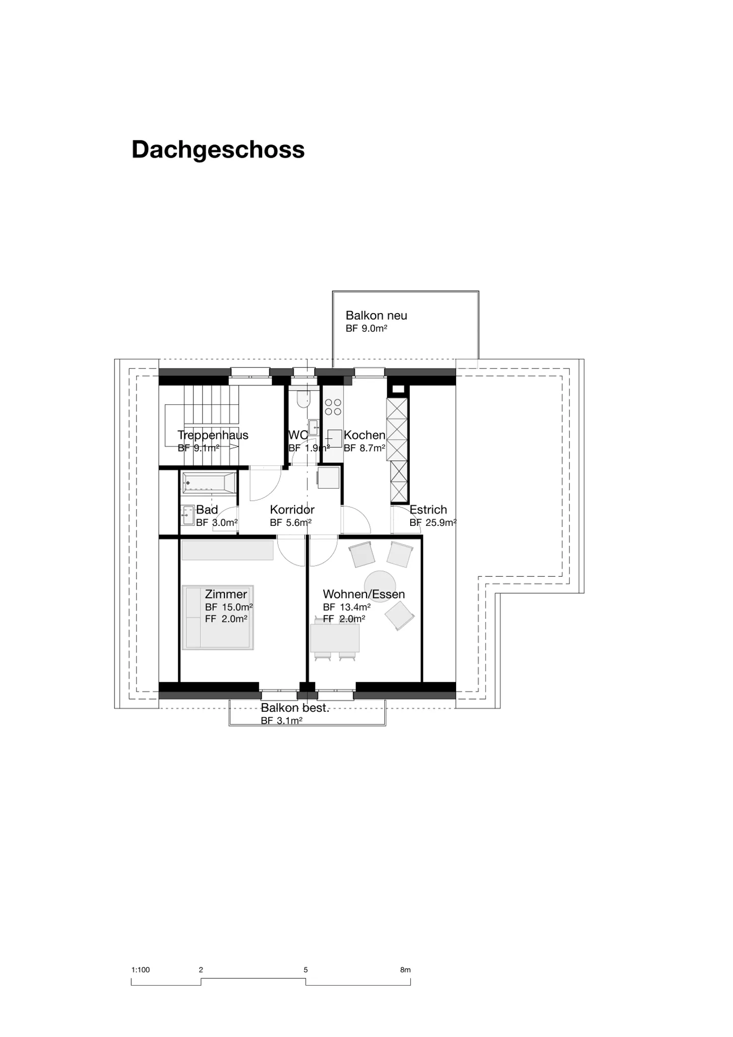
Emménager et se sentir chez soi - Maison multifamiliale entièrement rénovée avec vue sur le lac
À Seeblickstrasse 2 à Kreuzlingen, nous vendons une maison multifamiliale entièrement rénovée de haute qualité avec un total de trois unités résidentielles dans un quartier résidentiel central et recherché.
La propriété comprend :
* 2 × appartements de 4,5 pièces
* 1 × appartement de 2,5 pièces
La maison a été conçue de manière architecturale afin que l'appartement du rez-de-chaussée puisse utiliser exclusivement l'ensemble de la partie jardin sud. Les appartements à l'étage supérieur et au grenier ...
Détails du bien
- Disponible à partir de
- 01.03.2026
- Année de construction
- 1964
- Année de rénovation
- 2026



