Immeuble résidentiel à vendre - Rue De L'hôtel-De-Ville 13, 2740 Moutier
Pourquoi vous aimerez ce bien
Utilisation immédiate
Étude architecturale incluse
Potentiel de développement prouvé
Organiser une visite
Réserver une visite avec Krunoslav aujourd'hui !
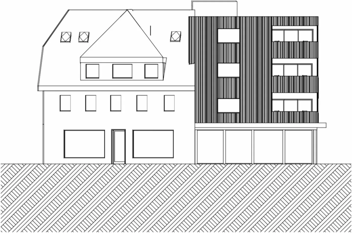
Bâtiment résidentiel et commercial central avec un grand potentiel
Propriété existante et de développement centrale avec une étude de faisabilité solide
Cette propriété au cœur de Moutier représente une combinaison exceptionnelle d'espace existant immédiatement utilisable et de potentiel de développement prouvé. La base de la perspective de développement est une étude architecturale et de faisabilité complète réalisée par un cabinet d'architecture spécialisé, qui décrit clairement les possibilités structurelles, fonctionnelles et d'urbanisme.EXISTANT
Le bâtiment ...
Détails du bien
- Disponible à partir de
- Sur accord
- Pièces
- 12
- Année de construction
- 1960
- Surface habitable
- 1185 m²
- Surface utilisable
- 1185 m²
- Surface du terrain
- 761 m²




