1 / 7

Bureau à vendre - 2613 Villeret

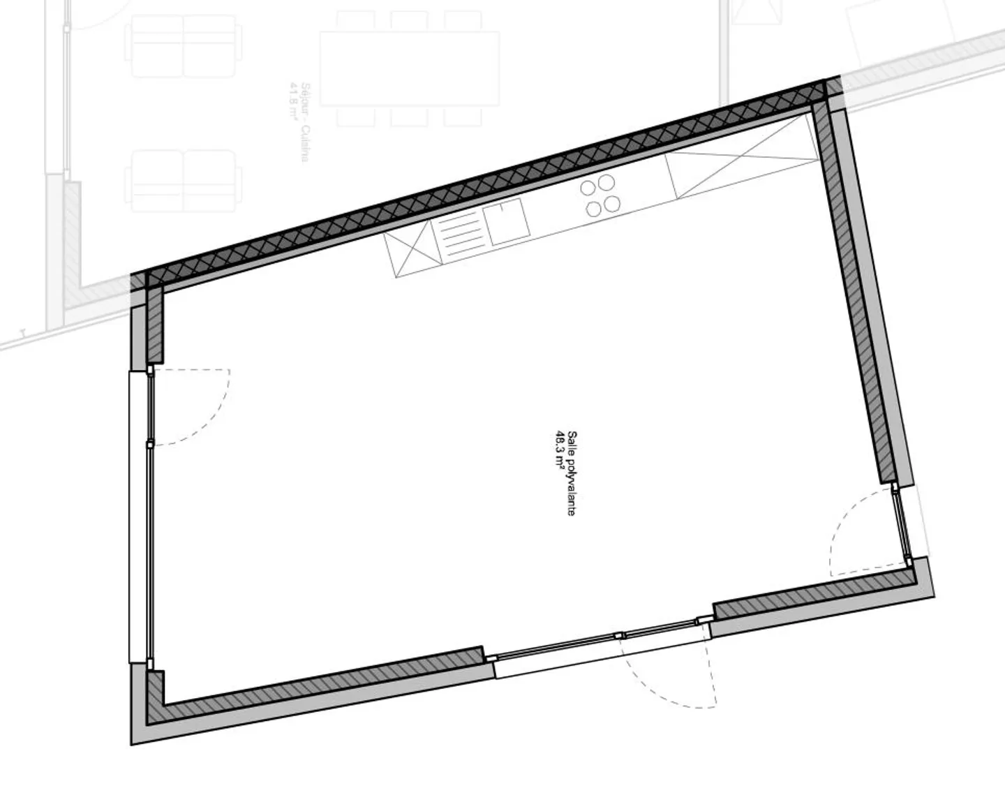
48 m² • Rez-de-chaussée
Prix sur demande
-

Pourquoi vous aimerez ce bien

Conception de plafond flexible

Idéal pour un bureau à domicile

Finitions modernes partout

Organiser une visite

Réserver une visite avec Service aujourd'hui !

Service Immobiliers
INSOL IMMO
Cette description a été traduite automatiquement depuis Allemand.

Votre futur espace professionnel entre nature et modernité

RÉALISATION DE 18 APPARTEMENTS + 1 ESPACE PROFESSIONNEL À VILLERET

N'hésitez pas à nous contacter pour discuter ensemble de votre projet pour cet endroit !

Nous préférons les personnes qui souhaitent louer un appartement avec cet espace, qui pourrait par exemple être utilisé comme "bureau à domicile".

Dans tous les cas, l'utilisation prévue pour la PPE ne doit pas être perturbante et ne doit pas générer de circulation de véhicules. Utilisation possible : Activité du secteur tertiaire.

Sous rése...

Détails du bien

Disponible à partir de
01.03.2026
Année de construction
2025
Surface habitable
48
Surface utilisable
48

Caractéristiques

Garage
Nouveau développement

Agence

INSOL IMMO
Adresse:Rue des Moulins 51, 2002, Neuchâtel 2
Service Immobiliers
Ref: 942899-990
En ligne depuis
22/10/2025
il y a 19 heures

Localisation

2613 Villeret

Sources