Atelier à vendre - 1868 Collombey
Pourquoi vous aimerez ce bien
Agencements personnalisables
Planchers à haute capacité
Accès Internet fibre optique
Organiser une visite
Réserver une visite aujourd'hui !
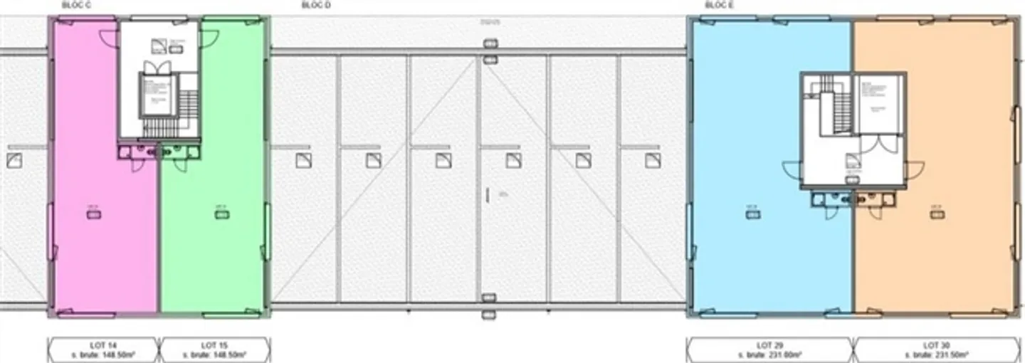
Halls industriels, surfaces et dimensions selon les besoins.
Halls industriels, surfaces et dimensions sur demande.
Nous disposons de plusieurs halls indépendants avec la possibilité de réunir différents lots.
- Plateforme élévatrice 300 x 600 cm de profondeur, 220 cm de hauteur, capacité de charge 5000 kg
- Accès véhicule selon le lot par porte sectionnelle 3,2 x 4,1 m ou 4 x 4,1 m
- Hauteur intérieure : 4,9 m
- Charge de sol : 1 000 kg par m2
- Ajustements à la discrétion des locataires
- Intensité du courant : intensité élevée possible
- Internet fibre optiqu...
Détails du bien
- Disponible à partir de
- Sur accord
- Pièces
- 2



