Appartement à vendre - Weesstrasse, 9434 Au SG
Pourquoi vous aimerez ce bien
Système de chauffage économe
Terrasse couverte spacieuse
Matériaux de haute qualité
Organiser une visite
Réserver une visite aujourd'hui !
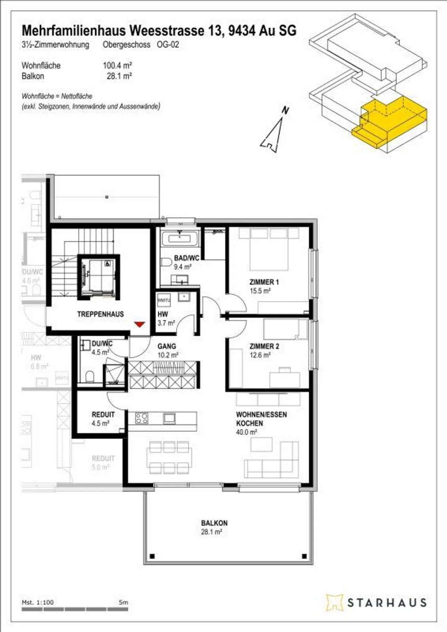
Appartement 3.5 pièces, 1er étage - dernière opportunité!
Dans un bel emplacement résidentiel calme à Au SG, cet immeuble multifamilial avec 5 appartements en copropriété a été réalisé. Jardin d'enfants, écoles, commerces et arrêts de bus se trouvent à quelques minutes à pied.
Une disposition des pièces généreuse et moderne et des espaces de vie baignés de lumière offrent beaucoup d'espace pour un logement attrayant. La qualité et le design ont été prioritaires dans le choix des matériaux, et les murs ont été peints avec de la peinture biologique.
Le nou...
Détails du bien
- Disponible à partir de
- Sur accord
- Pièces
- 3.5
- Salles de bain
- 2
- Année de construction
- 2025
- Surface habitable
- 100 m²
- Étage
- 1er



