Appartement à vendre - Vicolo Fontile, 6648 Minusio
Pourquoi vous aimerez ce bien
Espace de vie lumineux
Caractéristiques énergétiques durables
Design intérieur personnalisable
Organiser une visite
Réserver une visite aujourd'hui !
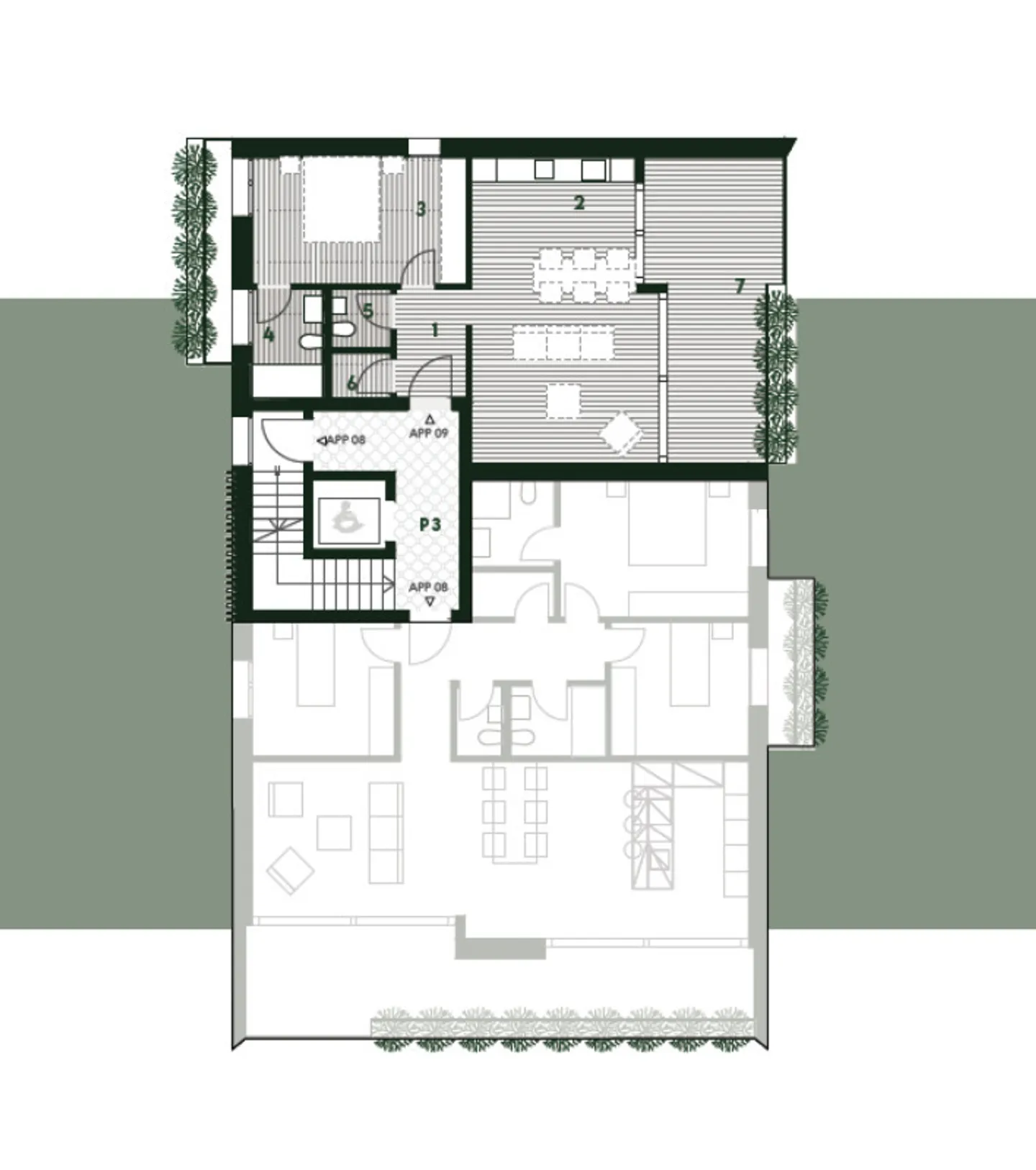
À VENDRE À MINUSIO - APPARTEMENT DE 2,5 PIÈCES DANS UN NOUVEAU BÂTIMENT
La nouvelle "Residenza Fontile" à Minusio se compose de 8 appartements (résidence principale). Le bâtiment est situé dans un quartier très calme, entouré de verdure, d'où l'on peut facilement accéder au lac avec sa belle promenade ainsi qu'à tous les services publics et commodités offerts par la commune. Le volume avec ses formes simples et essentielles rappelle les éléments de l'architecture moderne.
L'architecture de la résidence se caractérise principalement par les connexions entre les espace...
Détails du bien
- Disponible à partir de
- Sur accord
- Pièces
- 2.5
- Salles de bain
- 2
- Année de construction
- 2024
- Étage
- 3ème



