Appartement à vendre - Via Vallone, 6500 Bellinzona
Pourquoi vous aimerez ce bien
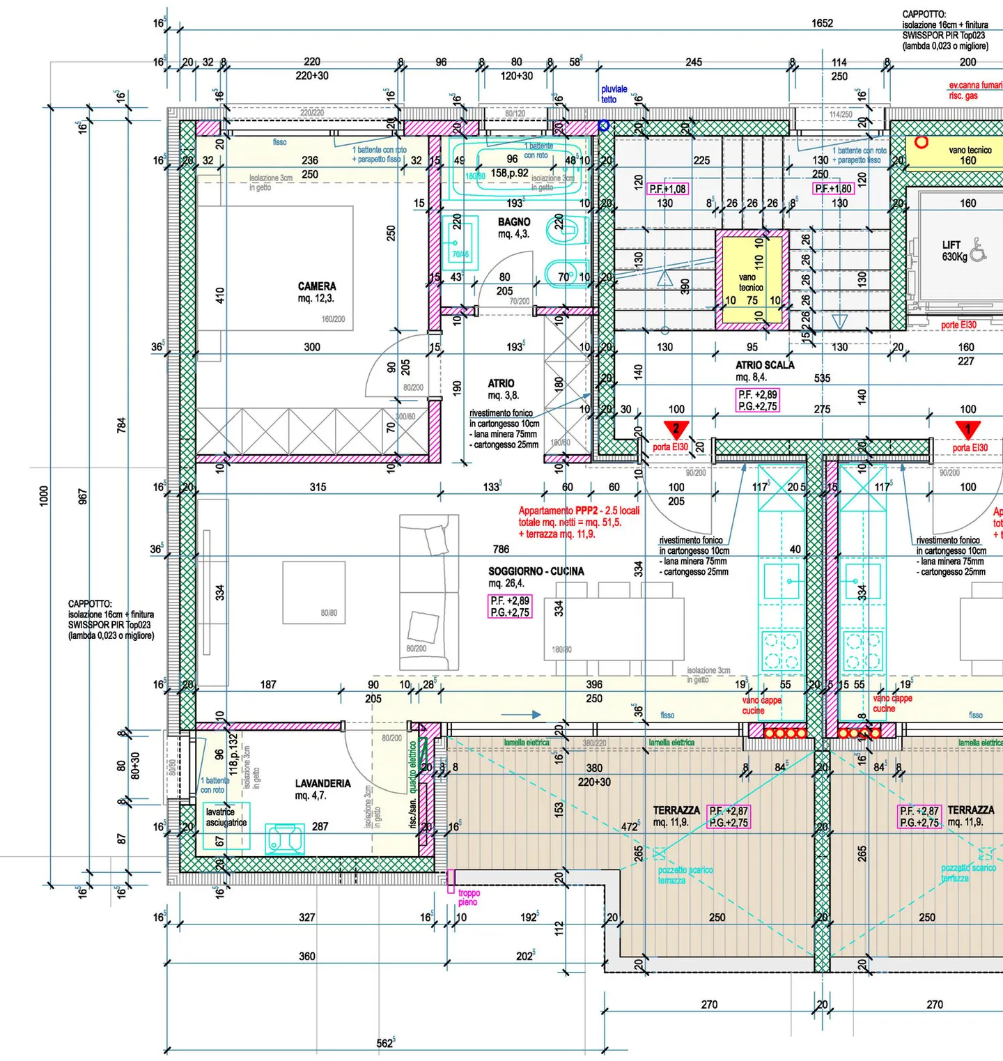
Buanderie privée dans l'appartement
Terrasses couvertes pour se détendre
Système de chauffage économe en énergie
Organiser une visite
Réserver une visite avec Claudio aujourd'hui !
Nouvel appartement exclusif dans un emplacement pratique et stratégique
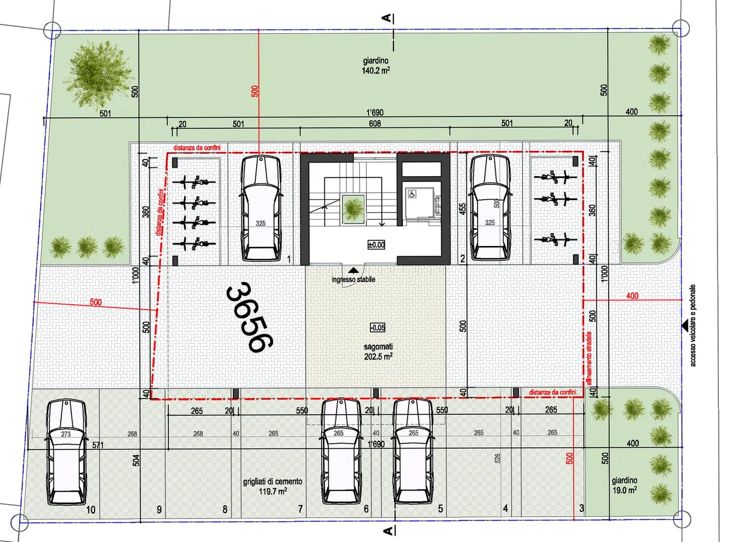
La Residenza Sila 9, qui sera construite dans la zone de Geretta avec accès depuis la Via Vallone, se trouve à seulement un kilomètre et demi de la nouvelle gare FFS et non loin du centre-ville.
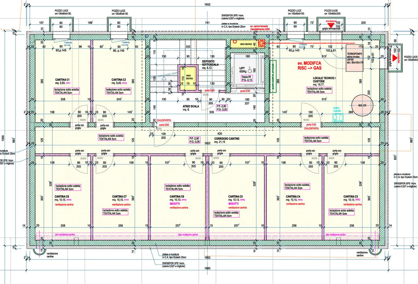
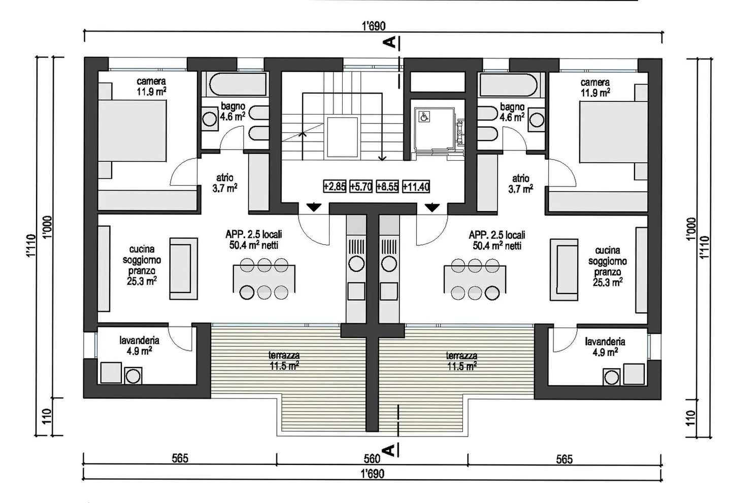
La résidence se compose de seulement 8 appartements de 2 ½ pièces, répartis sur quatre niveaux, avec deux appartements par étage, allant du premier au quatrième étage.
Le bâtiment sera construit dans un style architectural traditionnel, avec des éléments en béton et en maçonnerie et une isolation thermique...
Détails du bien
- Disponible à partir de
- Sur accord
- Pièces
- 2.5
- Année de construction
- 2025
- Surface habitable
- 63 m²
- Surface utilisable
- 73 m²
- Étage
- 1er




